Borrowed Sky Residence, Ngôi nhà Victoria, Ngôi nhà hiện đại Melbourne, Hình ảnh kiến ​​trúc đương đại Úc

10 tháng 3 năm 2026

Kiến trúc: Kiến trúc sư Lai Cheong Brown

Địa điểm: Strathmore, Melbourne, Victoria, Úc

Mượn Sky Residence Melbourne Victoria

Ảnh của Jaime Diaz-Berrio Photography

Mượn Sky Residence, Úc

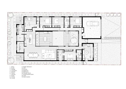
Trong khi Australia chưa bao giờ đa văn hóa hơn về dân số và triển vọng, những ngôi nhà điển hình ở ngoại ô Australia đã thay đổi rất ít trong 75 năm qua để thừa nhận sự thay đổi nhân khẩu học mạnh mẽ này, với các mô hình nhà ở vẫn được định tuyến theo kiểu nhà gỗ độc lập được nhập khẩu từ Anh và Bắc Mỹ vào thế kỷ trước.

Mượn Sky Residence Melbourne Vic Mượn Sky Residence Melbourne Victoria

Borrowed Sky nhằm mục đích giải quyết vấn đề này bằng cách khám phá một loại hình sân trong thực sự, điển hình hơn ở Nam và Đông Á nhưng vẫn có chi phí phải chăng, sử dụng các lựa chọn vật liệu gạch veneer và mái ngói thông thường để đảm bảo khả năng xây dựng, bất chấp kế hoạch không điển hình và khả năng dễ dàng được nhiều người Úc chấp nhận, đang tìm kiếm các loại nhà ở quen thuộc hơn về mặt văn hóa.

Mượn Sky Residence Melbourne Vic

Điều thú vị là, mô hình sân trong đưa ra những thách thức pháp lý xung quanh hiệu suất nhiệt, vì hệ thống mô hình được cấu trúc rất nhiều xung quanh các tòa nhà tập trung – chứ không phải những tòa nhà có thể được chiếu sáng tự nhiên từ bên trong.

Mượn Sky Residence Melbourne Vic

Mượn Sky Residence Melbourne Vic

Borrowed Sky cũng không bình thường trong nhà ở ở Úc vì nó không tìm cách nhìn vào khu vườn phía sau được đóng khung cẩn thận được trang trí bởi một hồ bơi hoặc ngang qua một cảnh quan năng động – nó hướng nội, hướng nội để ghi lại khoảnh khắc ngoài trời, được đóng khung bởi mặt tiền sân riêng của nó, không có liên kết trực tiếp với bên ngoài, ngoài phạm vi bầu trời mà nó vay mượn.

Sky Residence Melbourne Vic Úc được mượn Sky Residence Melbourne Vic Úc được mượn

Nhóm thiết kế đã tiếp cận thách thức giới thiệu một sản phẩm như thế nào? kiểu chữ không điển hình giống như một ngôi nhà có sân trong khung cảnh ngoại ô Melbourne điển hình? Những cân nhắc nào đã được thực hiện để đảm bảo nó hài hòa với, hoặc có lẽ thách thức một cách tinh tế, ngôn ngữ bản địa hiện có?

Đây là một câu hỏi thú vị, bởi vì một số thách thức thực tế lớn nhất mà dự án và địa điểm của nó đưa ra liên quan đến các giả định được đưa ra khi khu nhà lần đầu tiên được chia nhỏ xung quanh cách sắp xếp tất cả các ngôi nhà tương lai trên khu nhà. Tất cả các yêu cầu về khoảng lùi phía trước và khoảng trống phía sau và bên hông để cung cấp hệ thống thoát nước đều cho rằng các ngôi nhà sẽ là khối lớn tập trung ở trung tâm ở một phần ba phía trước của khu nhà. Nhà ở sân sân thách thức những giả định này bằng cách kéo phần lớn những gì là khu vườn phía sau vào dấu chân của ngôi nhà thách thức những giả định này khi diện tích của khu nhà thay đổi.

Sky Residence Melbourne Vic Úc được mượn Mượn Sky Residence Melbourne Victoria

Vay Sky Residence ở Melbourne, Victoria – Thông tin tòa nhà

Thiết kế: Lai Cheong Brown – https://laicheongBrown.com/

Quy mô dự án: 318 m2
Diện tích khu đất: 654 m2
Ngày hoàn thành: 2023
Cấp độ xây dựng: 1

Builder: Khái niệm tòa nhà thông minh

Mượn Sky Residence Melbourne Victoria

Nhiếp ảnh gia: Jaime Diaz-Berrio Photography

Borrowed Sky Residence, Melbourne, Victoria hình ảnh / thông tin nhận được 100326

Địa điểm: Strathmore, Melbourne, Victoria, Úc

Kiến trúc ở Melbourne

Thiết kế Kiến trúc Melbourne – danh sách theo thời gian

Tin tức kiến ​​trúc Melbourne

Tour đi bộ khám phá kiến ​​trúc Melbourne

Kiến trúc Melbourne

Văn phòng Kiến trúc sư Melbourne – danh sách studio thiết kế

Kiến trúc Úc

Nhà Núi Eliza
Kiến trúc và nội thất: BENT Architecture
Nhà Mt Eliza Melbourne Victoria
ảnh: Tatjana Plitt
Nhà Núi Eliza
Người Úc đang sống lâu hơn và tận hưởng sức khỏe cũng như thể lực lâu dài khi nghỉ hưu, vậy chẳng phải đã đến lúc chúng ta tạo ra những ngôi nhà để hỗ trợ và tạo điều kiện cho nhóm dân số ngày càng tăng này sao? Một trong những niềm đam mê của chúng tôi tại Bent Architecture là thiết kế cho sự lão hóa tại chỗ.

Nhà MalvernMalvern
Kiến trúc sư: Mckimm
Nhà Malvern Úc
ảnh: Timothy Kaye
Nhà Malvern
Một cửa sổ tròn đặc trưng nằm ở cuối lối đi, đây là điểm nhấn bất ngờ thu hút ánh nhìn của bạn khi bước vào Ngôi nhà Malvern. Được hình thành bằng bê tông, nó là một khối rắn chắc; có trọng lượng và táo bạo. Khẩu độ kính không khung làm nổi bật sự phong phú của không gian.

Nhà đầu hồi CeresGeelong, Victoria
Kiến trúc sư: Tecture
Nhà Ceres Gable ở Geelong
ảnh: Nhiếp ảnh Peter Clarke
Ngôi nhà mới ở Geelong
Ngôi nhà hiện tại có dạng thẳng đơn giản gợi nhớ đến một ngôi nhà ở Úc. Một hiên thấp bao bọc các cao độ phía đông và phía bắc, đồng thời có khu giải trí ngoài trời ở tầng dưới, hầu như không được sử dụng.

Khu dân cư phố HaroldMelbourne
Thiết kế: Kiến trúc sư Jackson Clements Burrows Pty Ltd
Khu dân cư phố Harold

Nhà Úc

Nhà trên câyKew
Thiết kế: Andrew Child Architecture
Ngôi nhà trên cây ở Kew Melbourne
ảnh: Rhiannon Slatter
Nhà trên cây ở Kew
Các chủ sở hữu muốn nâng cấp ngôi nhà Californian Bungalow ở vùng ngoại ô phía giữa vụng về và tối tăm thành một nơi ở làm việc + 3 phòng ngủ sáng sủa, hiện đại.

Thiết kế: NHArchitecture
Phố Myer Bourke

Kiến trúc sư Úc

Bình luận/hình ảnh cho Khu dân cư Sky mượn, Melbourne, Victoria thiết kế bởi Lai Cheong Brown trang chào mừng



Source link

Tin cùng loại