Ngôi nhà ẩn, Wimbledon, Đại Luân Đôn, Anh, hình ảnh kiến ​​trúc

20 tháng 4 năm 2026

Thiết kế: Kiến trúc Greenaway

Địa điểm: Trung tâm Wimbledon, phía tây nam London, Anh, Vương quốc Anh

Ngôi nhà ẩn giấu Wimbledon Greater London trên mái nhàNgôi nhà ẩn giấu Wimbledon Greater London trên mái nhà

Hình ảnh: Kiến trúc Greenaway

Ngôi nhà ẩn giấu, Wimbledon, Đại Luân Đôn, Anh

Hidden House, nằm trên đường Lambton, London SW20 UK, là một ngôi nhà nhỏ hiện đại được thiết kế cẩn thận để hòa hợp với môi trường xung quanh.

Bản phác thảo của Ngôi nhà ẩn Wimbledon Greater LondonBản phác thảo của Ngôi nhà ẩn Wimbledon Greater London

Được xây dựng thay cho một nhà để xe đổ nát, dinh thự độc đáo này được bao bọc quanh một khu vực trũng, che khuất tầm nhìn. Kết quả là một ngôi nhà được che giấu khéo léo gây ngạc nhiên với thiết kế hiện đại và cách sử dụng không gian thông minh. Với sự hiện diện tinh tế của nó, Hidden House thách thức những quan niệm truyền thống về kiến ​​trúc nhà ở, tạo ra cảm giác tò mò và tò mò.

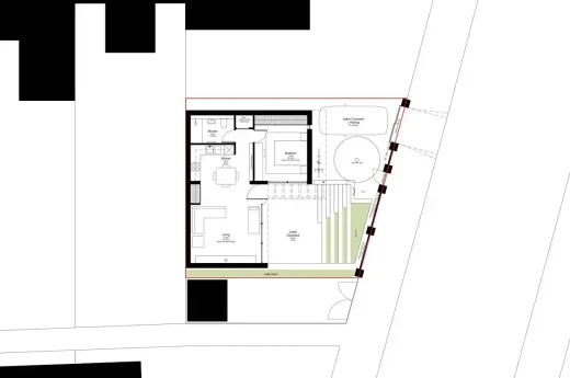
Kế hoạch của Ngôi nhà ẩn Wimbledon Greater LondonKế hoạch của Ngôi nhà ẩn Wimbledon Greater London

Cách tiếp cận sáng tạo của dự án trong thiết kế và xây dựng đã mang lại một ngôi nhà thực sự có một không hai, chắc chắn sẽ mê hoặc. Là minh chứng cho sức mạnh của thiết kế sáng tạo, Hidden House là một ví dụ đầy cảm hứng về những gì có thể đạt được khi trí tưởng tượng và chuyên môn kết hợp với nhau.

Ngôi nhà ẩn giấu sân Wimbledon Greater LondonNgôi nhà ẩn giấu sân Wimbledon Greater London

Ngôi nhà ẩn Wimbledon Đại Luân Đôn AnhNgôi nhà ẩn Wimbledon Đại Luân Đôn Anh

Để biết thêm thông tin, vui lòng truy cập trang web của dự án tại https://www.greenawayarchitecture.co.uk/projects/hidden-house/, nơi giới thiệu các tính năng độc đáo của ngôi nhà và các yếu tố thiết kế thông qua một loạt ảnh và mô tả chi tiết, nêu bật các giải pháp sáng tạo và sự chú ý đến từng chi tiết đã tạo nên bất động sản đặc biệt này.

Ngôi nhà ẩn giấu Chiếc rìu Wimbledon Greater LondonNgôi nhà ẩn giấu Chiếc rìu Wimbledon Greater London

Ngôi nhà ẩn giấu ở Wimbledon, Greater London – Thông tin xây dựng

Thiết kế: Kiến trúc Greenaway – https://www.greenawayarchitecture.co.uk

Quy mô dự án: 50 m2
Diện tích khu đất: 130 m2
Cấp độ xây dựng: 1

Ngôi nhà ẩn Wimbledon Greater London Vương quốc AnhNgôi nhà ẩn Wimbledon Greater London Vương quốc Anh

Ngôi nhà ẩn giấu Nhà bếp Wimbledon Greater LondonNgôi nhà ẩn giấu Nhà bếp Wimbledon Greater London

Kết xuất: Kiến trúc Greenaway

Ngôi nhà ẩn giấu, Wimbledon, Greater London, Anh hình ảnh / thông tin nhận được 200426

Địa điểm: Trung tâm Wimbledon, tây nam London, Anh, Vương quốc Anh

Kiến trúc ở Luân Đôn

Liên kết Kiến trúc Luân Đôn – danh sách theo thời gian

Chuyến tham quan đi bộ kiến ​​trúc London của kiến ​​trúc sư điện tử

Kiến trúc sư Luân Đôn

Công trình Dalston
Thiết kế: Kiến trúc sư Waugh Thistleton
Tòa nhà Dalston WorksTòa nhà Dalston Works
nhiếp ảnh : Daniel Shearing
Khu phát triển khu phức hợp Dalston Works ở Hackney

Kiến trúc Luân Đôn

Nhà Agar GroveCamden
Thiết kế: HawkinsBrown
Nhà Agar Grove ở CamdenNhà Agar Grove ở Camden
ảnh © Jack Hobhouse
Nhà Agar Grove

Kiến trúc Tây London

Thiết kế: Matthew Lloyd Architects LLP
Nhà thờ Baptist Công viên FramptonNhà thờ Baptist Công viên Frampton
ảnh: Benedict Luxmoore, Patricia Woodward
Tòa nhà Nhà thờ Baptist Frampton Park ở Hackney

Bình luận/hình ảnh cho Ngôi nhà ẩn giấu, Wimbledon, Đại Luân Đôn, Anh thiết kế xây dựng bởi trang Greenaway Architecture chào mừng



Source link

Tin cùng loại

Leave a Comment