𝑇ℎ𝑜̂𝑛𝑔 𝑡𝑖𝑛 𝑑𝑢̛̣ 𝑎́𝑛:
▪️ Phong cách: Hiện đại
▪️ Diện tích thiết kế: 200m²
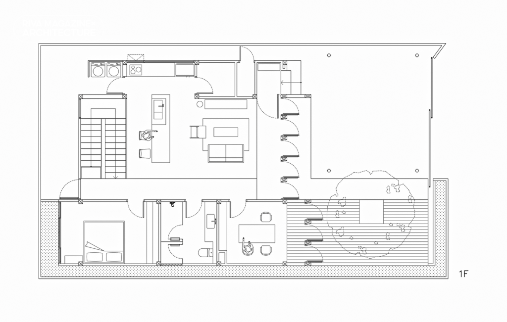
Masook House là ngôi nhà hai tầng dành cho một gia đình nhỏ 3 thành viên. Để tối đa hóa ánh sáng và thông gió tự nhiên, các kiến trúc sư đã sử dụng các cửa sổ có chiều cao tối đa ở mặt tiền phía Bắc. Cửa chớp bằng gỗ được kết hợp để đảm bảo sự riêng tư đồng thời đóng vai trò là mặt tiền chính cho ngôi nhà.


Không gian được thiết kế thành hai khu vực riêng biệt: không gian chung theo không gian mở và cấu hình gấp đôi, nơi gia đình có thể dành thời gian bên nhau. Với diện tích xây dựng hạn chế, không gian cá nhân cho mỗi cư dân/người dùng cá nhân được giữ ở mức tối thiểu để có thể có một khu vực chung lớn hơn để sinh hoạt chung.

































