✕
“Làm thế nào cấu trúc có thể tạo ra một ngôn ngữ?” Adrien Verschuere, người sáng lập công ty kiến trúc Baukunst có trụ sở tại Brussels hỏi. Anh ấy đang đề cập đến Frame, tòa nhà hàng đầu của một công viên truyền thông mới mà Société d’Aménagement Urbain (một công ty phát triển thuộc sở hữu nhà nước) đang xây dựng ở thủ đô của Bỉ. Được mời bởi Brussels bouwmeester (kiến trúc sư thành phố cho các dự án của chính phủ) để tham gia cuộc thi thiết kế năm 2017, Baukunst đã hợp tác với Bruther người Pháp (một Design Vanguard năm 2017, do Stéphanie Bru và Alexandre Thériot đứng đầu), đánh bại các đề xuất của Office Kersten Geers David Van Seriousn, Xaveer De Geyter và 51N4E. Hai nguyên tắc chính hướng dẫn cách tiếp cận của họ: đáp ứng địa điểm nổi bật về mặt trực quan và đạt được sự linh hoạt tối đa để đáp ứng danh sách người cư trú đang ngày càng tăng.
Mặt đứng hướng về phía Nam của tòa nhà được bao bọc bởi khung thép và lưới vải. Ảnh © Maxime Delvaux, Baukunst lịch sự, bấm vào để phóng to.
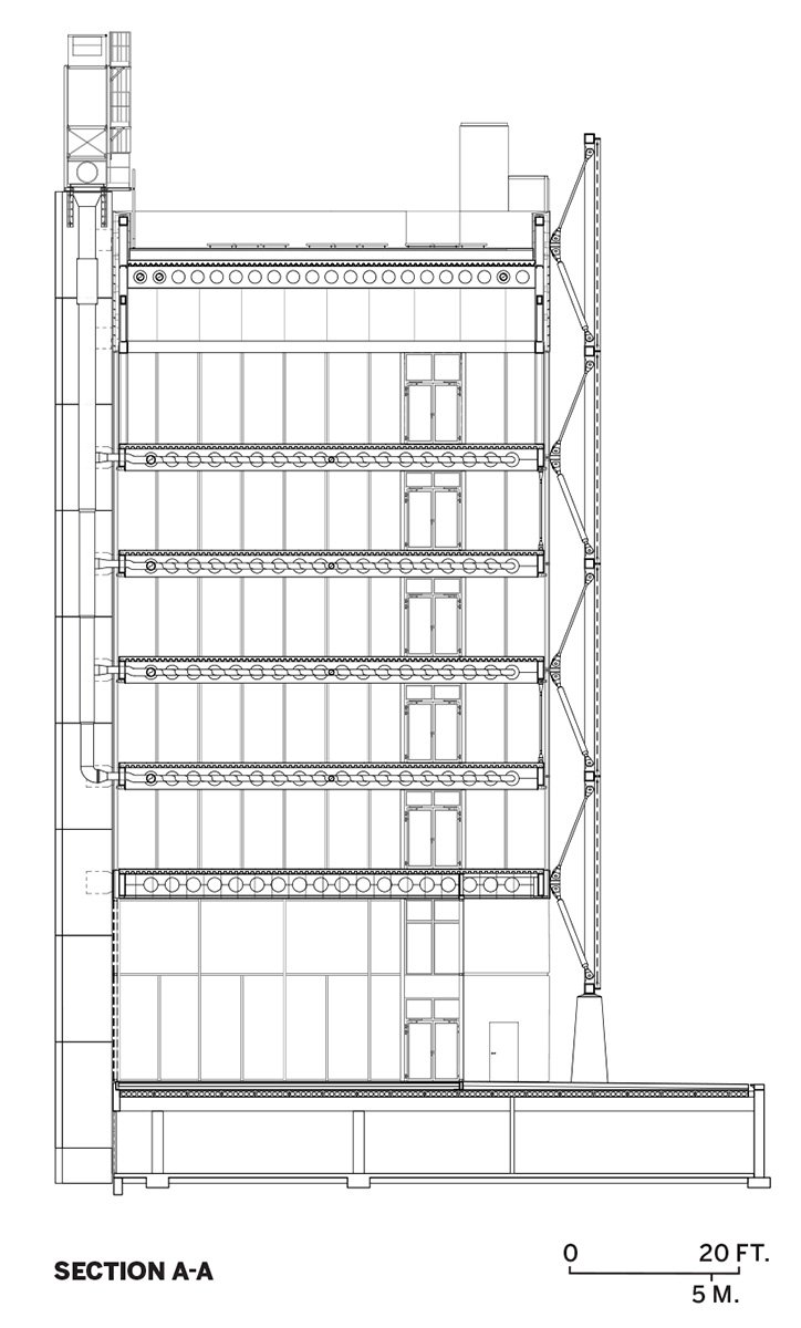
Nằm ở phía đông Brussels, công viên truyền thông trên thực tế là một công trình tái phát triển, bao gồm việc phá hủy và xây dựng lại một số tòa nhà và bảo tồn những tòa nhà khác. Frame, công trình kiến trúc mới đầu tiên được hoàn thành, chiếm một bãi đậu xe cũ và chào đón du khách khi họ ra khỏi tàu điện ngầm địa phương. Cao 100 feet, giống như những tòa nhà văn phòng bằng kính những năm 1990 bên cạnh, nó đứng vuông góc với đại lộ Auguste Reyers, một trục giao thông huyết mạch và đối diện với một quảng trường đầy cỏ. Tòa nhà được dẫn vào từ độ cao đại lộ hẹp phía tây, trong khi mặt tiền phía nam, nhìn ra quảng trường, tạo thành bộ mặt công cộng chính của nó. Ngược lại, mặt bằng phía bắc và phía đông nằm ở hậu trường rất nhiều, sự khác biệt được phản ánh trong kỹ thuật kết cấu của dự án.
Nội thất không có cột. Ảnh © Séverin Malaud, Bruther lịch sự
Bru của tòa nhà rộng 91.500 foot vuông cho biết: “Khung giống như một phần cơ sở hạ tầng hơn là một tòa nhà cổ điển với bốn bức tường và cửa sổ. Để đạt được các tầng hoàn toàn không có cột, các kiến trúc sư đã sử dụng nguyên tắc khung ngoài nhưng tạo cho nó một biểu hiện rất khác ở phía trước so với phía sau. Trong khi các trụ bê tông có chiều cao tối đa, đặt cách nhau 25 feet, tạo nhịp điệu cho độ cao phía bắc, thì mặt tiền phía nam có khung thép khổng lồ đứng trên các cột bê tông gốc cây và bao gồm các ô vuông có kích thước 25 x 25 feet. Dây buộc nhện kết nối khung với mọi tầng khác, mỗi tầng ở giữa được treo lơ lửng ở tầng trên.

1

2
Các trụ bê tông ngắn hỗ trợ khung kết cấu thép và tạo thành mái vòm. Ảnh © Séverin Malaud, Bruther lịch sự
Hệ thống cơ khí được tiếp xúc. Ảnh © Maxime Delvaux, lịch sự Baukunst
Hệ thống cơ khí cũng được bố trí bên ngoài, chạy dọc mặt tiền phía bắc và trên mái nhà, trong khi các lõi bê tông bên ngoài, được đặt ở phía đông và tây bắc, có cầu thang, thang máy và phòng vệ sinh, giúp cấu trúc cứng lại trước gió.
Bru nói: “Chúng tôi tưởng tượng mặt tiền phía nam như một bảng quảng cáo khổng lồ, có thể nhìn thấy từ ô tô của bạn khi bạn lái xe xuống đại lộ”. Nó cũng là một tấm bình phong, theo cả nghĩa bóng lẫn nghĩa đen, vì được buộc vào nó là những tấm chắn gió nông nghiệp, một loại lưới vải bền, rẻ tiền mà các kiến trúc sư đã tái sử dụng làm bộ lọc ánh sáng mặt trời. Các đơn vị kính suốt từ trần đến sàn tạo nên lớp vỏ tòa nhà, phù hợp với yêu cầu của khách hàng về khả năng xuyên sáng tối đa của ánh sáng ban ngày; Ở độ cao phía Tây, một lớp phủ phản chiếu làm giảm bớt ánh nắng buổi chiều nóng bức, trong khi ở tầng trệt, lớp vỏ kéo về phía sau để tạo ra một lối vào hiên về phía Tây và một dãy cột có mái che ở phía Nam. Trong kiến trúc tập hợp và kiến tạo này, các khớp nối và lực đều được hiển thị rõ ràng, như được thể hiện bên trong ở cấp cao nhất, được thiết kế như một “chùm có người ở” hoặc bên ngoài với các đường kính khác nhau của các thanh giằng dạng nhện, những thanh bị nén dày hơn đáng kể so với những thanh bị căng.
Nội thất của Frame được chia thành bảy tầng: một tầng hầm để xe, tầng trệt cao, bốn tầng tiêu chuẩn và tầng trên cùng cao gấp đôi, được trang bị làm studio truyền hình và phát thanh cho đài tin tức địa phương, BX1. Một quán rượu sẽ sớm chiếm lĩnh tầng trệt, kho lưu trữ nghe nhìn và không gian làm việc chung được lập trình cho một phần của tòa nhà, trong khi phần còn lại vẫn chưa tìm được người thuê. Verschuere giải thích, kích thước của tòa nhà dựa trên mô-đun 5 feet, bằng một nửa chiều rộng tối thiểu cần thiết cho một không gian làm việc. Với kích thước 50 feet x 220 feet, mỗi tầng được cho thuê hoàn toàn trống, với dầm di động và công nghệ trần được cố tình để lộ ra ngoài. Verschuere cho biết: “Chúng tôi đã cung cấp một hộp công cụ cho người thuê, giải thích cách sắp xếp các không gian phù hợp.
Việc xây dựng khung bao gồm việc chế tạo sẵn ở mức độ cao, bằng cả bê tông và kim loại. Việc lắp ráp tất cả các bộ phận khác nhau là một hoạt động phức tạp, trong đó các tầng được đỡ trên các cột giàn giáo; chỉ khi mọi thứ đã ổn thỏa thì chúng mới có thể được dỡ bỏ và tòa nhà trở nên căng thẳng. Verschuere nói: “Nó hơi căng thẳng, giống như việc hạ thủy một con tàu vậy”. Thật vậy, trước những thách thức do kỹ thuật phức tạp của Frame đặt ra, chưa kể đến chi phí tăng vọt của dự án khi Covid và cuộc chiến ở Ukraine gây thiệt hại—dự kiến là 16 triệu euro (18,7 triệu USD), cuối cùng nó đã tiêu tốn khoảng 20 triệu euro (23,3 triệu USD)—anh tự hỏi liệu ngày nay liệu có còn khả thi để xây dựng một cấu trúc như vậy hay không.
Về ngôn ngữ mà Frame nói, rõ ràng đó là High Tech, thành ngữ được tiên phong bởi các kiến trúc sư như Renzo Piano, Su Rogers và Richard Rogers tại Center Pompidou (1971–77) hay Foster + Partners tại Ngân hàng Hồng Kông và Thượng Hải (1979–86). Mặc dù rõ ràng là rất thành thạo trong việc khai thác khả năng thẩm mỹ của nó, Baukunst và Bruther quan tâm nhiều đến tiềm năng chức năng của nó hơn là sự quyến rũ của thời đại máy móc: họ sẽ rất vui khi thấy các hệ thống của Frame bị loại bỏ và kính của nó được thay đổi để cho phép thông gió tự nhiên, điều mà bộ luật xây dựng của Bỉ hiện đang cấm.
Hình ảnh lịch sự Baukunst
Hình ảnh lịch sự Baukunst