Trong thời gian bình thường, bạn có thể thường xuyên đến trung tâm cộng đồng lân cận để chơi trò chơi đón khách, các chương trình sau giờ học hoặc canasta. Trong những thời điểm đặc biệt, những điểm neo công dân không thể thiếu như vậy mang lại những điều trên—cộng với cảm giác bình thường và hiệp thông cần thiết. Họ cung cấp sự bảo vệ trong thời điểm khó khăn.
Minneapolis–Saint Paul là một nơi đã trải qua những thời kỳ đặc biệt. Một nguồn tự hào của khu phố kể từ khi nó mở cửa vào mùa xuân năm ngoái, Trung tâm Cộng đồng North End trị giá 30 triệu đô la (NECC) ở Saint Paul đã mở cửa cho những người đang tìm kiếm sự thoải mái trong những điều quen thuộc trong khoảng thời gian bất ổn và bất an đã bao trùm Thành phố Đôi kể từ cuối năm ngoái.
Kiến trúc sư Julie Snow cho biết: “Nó không giống một pháo đài mà giống một nơi tôn nghiêm hơn”. Công ty ở Minneapolis của cô, Snow Kreilich Architects, đã thiết kế tòa nhà rộng 25.280 foot vuông phía trước Phố Rice, hành lang thương mại chính xuyên qua một trong những khu phố lớn nhất, nghèo nhất và đa dạng nhất ở Saint Paul. Snow cho biết thêm: “Với tất cả cường độ đang diễn ra, trung tâm mang đến sự hiện diện yên tĩnh và hấp dẫn”.
Không gian cộng đồng được trải rộng trên ba tầng có ánh sáng ban ngày với gỗ lộ ra ngoài. Ảnh © Corey Gaffer, bấm vào để phóng to.
Cường độ mà Snow nói đến là việc các đặc vụ của Cơ quan Thực thi Hải quan và Nhập cư Hoa Kỳ (ICE) chiếm đóng Thành phố Đôi, với mục đích đã nêu của Bộ An ninh Nội địa là giam giữ và trục xuất những người nhập cư không có giấy tờ. Điều này bao gồm các nhóm mục tiêu như người tị nạn Somali, Ecuador, Hmong (từ Lào) và Karen (từ Myanmar)—tất cả đều hiện diện tập trung ở Saint Paul’s North End. Kể từ khi Chiến dịch Metro Surge của ICE bắt đầu vào cuối tháng 11 (và leo thang mạnh mẽ vào đầu năm nay), một số lượng không xác định công dân Hoa Kỳ, cư dân hợp pháp và những người xin tị nạn hợp pháp đã bị giam giữ trong và xung quanh Thành phố đôi. Vô số người biểu tình, quan sát viên hiến pháp và dân thường ngoài cuộc đã bị bắt giữ hoặc bị hành hạ một cách tàn bạo. RECORD lần đầu tiên thảo luận về Trung tâm cộng đồng North End với Snow, giám đốc dự án và kiến trúc sư James Howarth, giữa các vụ xả súng chết người của cư dân Minneapolis Renee Good và Alex Pretti lần lượt vào ngày 7 tháng 1 và ngày 24 tháng 1 bởi các đặc vụ ICE có vũ trang. Vào thời điểm viết bài này, hàng nghìn sĩ quan liên bang vẫn còn có mặt tại Thành phố Đôi. Các cuộc biểu tình quy mô lớn trên toàn quốc chỉ trích hành động của chính phủ liên bang ở Minnesota và vụ giết Good và Pretti vẫn tiếp tục.
Người qua đường có thể xem hoạt động tập thể dục từ cả đường phố và Công viên Fritz Klark. Ảnh © Corey Gaffer
Công viên và Giải trí Saint Paul, công ty sở hữu và điều hành NECC, đã chuyển tới RECORD một tuyên bố cho biết họ đã kéo dài thời gian hoạt động của cơ sở để đáp ứng các sinh viên và chương trình muốn sử dụng không gian nằm đối diện chi nhánh thư viện công cộng trên Phố Rice. Cũng có sự gia tăng các sự kiện được phép tại trung tâm để giúp gắn kết người dân địa phương hơn nữa. Người phát ngôn của bộ cho biết: “Các trung tâm giải trí đóng một vai trò quan trọng đối với sức khỏe tinh thần và thể chất của cư dân chúng tôi và NECC sẽ luôn là tài sản sẵn có cho cộng đồng của chúng tôi, đặc biệt là trong những thời điểm nhu cầu ngày càng tăng”.
Rất lâu trước các cuộc tấn công của người nhập cư, nhu cầu cấp thiết về một trung tâm thành phố đa nhiệm sẽ cung cấp nhiều tiện nghi giải trí và chương trình cộng đồng cho khu vực đang phát triển nhanh chóng và chưa được phục vụ đầy đủ của Saint Paul này. NECC thay thế Trung tâm Giải trí Rice cũ, nằm trong một không gian chật chội và khuất bóng do khu học chánh thành phố thuê. Do vị trí bên lề tương đối của địa điểm đó, Howarth nói “bản sắc và sự rõ ràng của sinh vật này của bạn không gian rất quan trọng đối với dự án.”
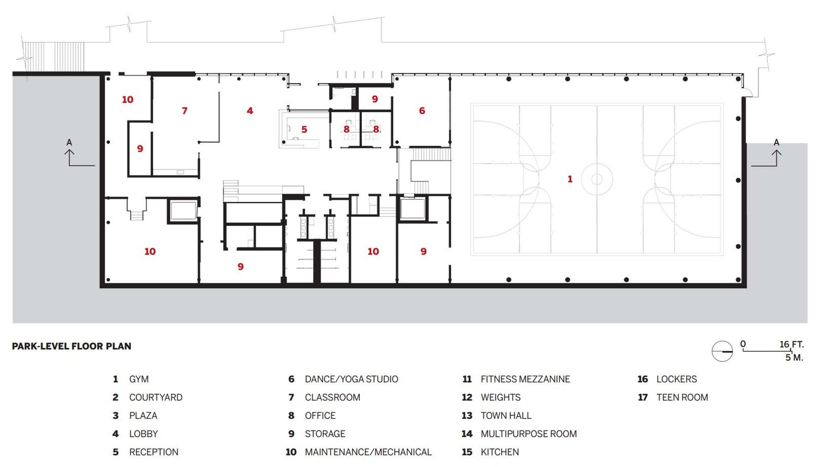
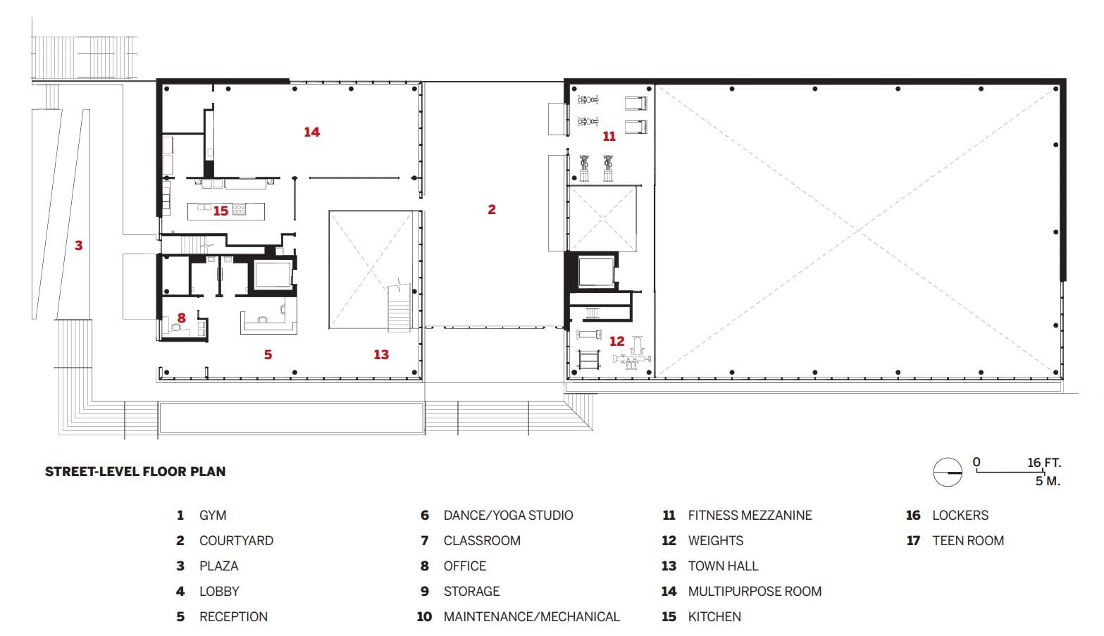
Để đạt được mục tiêu đó, NECC cung cấp phần lớn những gì bạn mong đợi từ một trung tâm cộng đồng hiện đại do thành phố điều hành: một phòng tập thể dục lớn, các phòng đa năng, phòng tập khiêu vũ và yoga, không gian dành riêng cho thanh thiếu niên cũng như các cơ sở tập thể hình và tạ. Tràn ngập ánh sáng ban ngày, những không gian này được chia thành hai cánh riêng biệt dành riêng cho các chức năng cộng đồng và giải trí; một sân trung tâm ngoài trời có thể đi vào từ Phố Rice để phân chia các khối hình hộp, có mặt bằng gạch. Phản ánh sự đa dạng văn hóa của khu vực lân cận, NECC cung cấp các trạm rửa chân cho người Hồi giáo và những người sử dụng khác, trong khi một bếp dạy học lớn cho phép các thành viên cộng đồng gắn kết với nhau thông qua ngôn ngữ phổ quát của ẩm thực. Công viên Fritz Klark rộng 6 mẫu Anh lân cận, nơi có trung tâm ở góc đông nam, gần đây đã nổi lên sau một cuộc cải tạo lớn với thiết bị vui chơi mới, sân cỏ nhân tạo, hệ thống chiếu sáng và cảnh quan được cải thiện cũng như các sân dành riêng cho cầu mâyhay còn gọi là bóng chuyền đá, một môn thể thao phổ biến ở Đông Nam Á.

1
Đối diện với Phố Rice (đầu trang), trung tâm có phòng tập thể dục (1) và các không gian xã hội, giống như “tòa thị chính” cao gấp ba lần (2). Ảnh © Corey Gaffer

2
Snow nói: “Sự pha trộn văn hóa của North End là thứ thực sự có ảnh hưởng đến suy nghĩ của chúng tôi về dự án. “Làm thế nào để bạn tạo ra một khuôn khổ cho nhiều nền văn hóa đến với nhau và trao đổi?”
Cũng hướng dẫn thiết kế là mặt tiền cửa hàng thương mại có mặt gạch thấp ở Phố Rice. Để tôn trọng quy mô của khu dân cư thuộc tầng lớp lao động trong lịch sử, từng là người da trắng và bây giờ đa số là người da đen và người châu Á, trung tâm xây dựng một tòa nhà hai tầng khiêm tốn trên đường phố. Nó phát triển thành ba tầng, nơi tòa nhà nằm trên đỉnh bờ kè, gặp công viên cấp thấp hơn ở độ cao phía sau của nó. Trong một động thái nhằm thúc đẩy tính minh bạch và độ xốp, những tấm kính rộng rãi kết nối người đi bộ trên Phố Rice với công viên bởi vì tòa nhà. Snow nói rằng lớp gạch phức tạp bao phủ các tầng trên của trung tâm đóng vai trò như lớp nền cho lớp gạch “đơn giản” của các tòa nhà lân cận. “Có rất nhiều loại gạch khác nhau dọc theo Phố Rice—cách tiếp cận của chúng tôi phản ánh điều này nhưng cũng mang lại rất nhiều hình ảnh động và sự ấm áp.”
Bản thân các thành viên cộng đồng riêng lẻ xuất hiện trong trang trí của trung tâm, được mô tả bằng giấy nến ảnh được coi là những bức tranh tường bên trong và một “hàng rào nghệ thuật” giữa sân của trung tâm và Phố Rice. Những bức tranh tường được tạo ra bởi Peyton Scott Russell, một nghệ sĩ ở Minneapolis nổi tiếng với tác phẩm Biểu tượng của một cuộc cách mạng bức tranh tường của George Floyd. Các bức tranh tường của Snow of Russell cho biết: “Sự đại diện cho cộng đồng này mang lại cảm giác sở hữu tự động đối với không gian”.

3

4
Các thành viên cộng đồng, những người có khuôn mặt được thể hiện trong các bức tranh tường cả bên trong trung tâm (3) và bên ngoài (4), có thể vào sảnh thông qua công viên trũng liền kề (5). Ảnh © Corey Gaffer

5
NECC được thành phố coi là trung tâm cộng đồng bền vững nhất cho đến nay. Đây là tòa nhà bằng gỗ khối đầu tiên của Công viên và Giải trí Saint Paul, với dầm glulam và sàn gỗ nhiều lớp (CLT) giúp tăng thêm sự ấm áp cho nội thất với lợi ích là giảm lượng carbon thải ra. Những thuộc tính này đã gây được tiếng vang với khách hàng, những người đã quen với việc xây dựng hoàn toàn bằng thép từ lâu. Tuy nhiên, quyết định tiến hành một dự án kết hợp thép và gỗ khối, ban đầu đòi hỏi phải có sự thăm dò và thuyết phục, Howarth nói. Dự án cuối cùng đã giúp các nhà cung cấp và lắp đặt địa phương làm quen với việc sử dụng CLT, một điều hiếm thấy trong khu vực. Trên mái của phòng tập thể dục là dãy năng lượng mặt trời một chiều công suất 39 kilowatt, trong khi chôn bên dưới Công viên Fritz Klark là trường địa nhiệt 44 giếng cung cấp tất cả năng lượng sưởi ấm và làm mát cho tòa nhà. Cũng được lắp đặt bên dưới công viên trong quá trình cải tạo—được thực hiện song song với việc xây dựng NECC—là một hệ thống quản lý nước mưa hàng triệu gallon đủ mạnh để bảo vệ North End khỏi những cơn bão 100 năm liên tiếp. Snow cho biết: “Họ chưa bao giờ yêu cầu chúng tôi giảm chất lượng của tòa nhà để đạt được mức độ phục hồi cao như vậy”.
Đề cập đến NECC như một “không gian lấy trẻ em và an ninh làm trung tâm”, Snow cho biết thêm rằng Công viên và Giải trí Saint Paul đã tiếp cận dự án từ quan điểm bền vững như một khoản đầu tư cho tương lai của những người dùng trẻ tuổi.
Thành phố không bao giờ có thể lường trước được tình trạng hỗn loạn hiện tại khi trung tâm khởi công vào mùa xuân năm 2023. Tuy nhiên, thật may mắn là nó đã được hoàn thành trước thời điểm mà các thành viên cộng đồng ở mọi lứa tuổi và hoàn cảnh, nhiều người sợ hãi và dễ bị tổn thương, đang cần nhất một nơi công cộng an toàn để đoàn kết, xả hơi hoặc chỉ chào đón một khuôn mặt thân thiện. Trung tâm cộng đồng North End đứng vững.
Hình ảnh lịch sự của Snow Kreilich Architects
Hình ảnh lịch sự của Snow Kreilich Architects
Hình ảnh lịch sự của Snow Kreilich Architects
Tín dụng
Kiến trúc sư:
Kiến trúc sư Snow Kreilich — Julie Snow, đối tác phụ trách; James Howarth, giám đốc dự án và kiến trúc sư; Brett Gustafson, Nathan Van Wylen, Aarón Bretón, nhóm thiết kế
Kỹ sư:
Studio NYL (kết cấu); Kỹ thuật Larson (dân dụng); Salas O’Brien (MEP, thiết kế ánh sáng)
Nhà tư vấn:
Công viên và Giải trí Saint Paul (kiến trúc cảnh quan); SEH (thiết kế máy bơm trạm bơm nước mưa); Khảo sát đất Sunde
Tổng thầu:
Xây dựng Donlar
Khách hàng:
Công viên và Giải trí Saint Paul
Kích cỡ:
25.280 feet vuông
Trị giá:
30 triệu USD (tổng cộng)
Hoàn thành:
tháng 5 năm 2025
Nguồn
Tấm ốp bên ngoài:
Sản phẩm đất sét Endicott (nề); WR Meadows (rào cản độ ẩm); Tấm kim loại kiến trúc Nordstrom, MG McGrath (tấm kim loại); Kawneer (tường rèm)
Tấm lợp thực vật:
Công nghệ xanh Columbia
Kính:
Viracon (thủy tinh); Solatube International (giếng trời)
Sàn phòng tập thể dục:
Hệ thống sàn hành động
Năng lượng:
Johnson Controls (hệ thống quản lý năng lượng); Đối tác năng lượng tái tạo (quang điện); Giải pháp thương mại lò nước (địa nhiệt)
Quản lý nước mưa:
Giải pháp bẫy bão nước mưa