Nhà Rathnelly của Studio VAARO

by admin


Hình ảnh trong phương thức.

Vị trí: Toronto

Chương trình: Ngôi nhà liền kề ở Midtown Toronto này là một công trình cải tạo toàn diện và mang tính biểu tượng về mặt hình học của một ngôi nhà thời Edward. Kiến trúc sư đã giới thiệu chức năng và tính linh hoạt của không gian đồng thời mở rộng đáng kể nội thất nhưng vẫn hoạt động hoàn toàn trong phạm vi ban đầu của nó. Khách hàng—một cặp vợ chồng chuyên nghiệp có con nhỏ—đã tìm kiếm một sự chuyển đổi vừa thực dụng vừa thẩm mỹ: tăng diện tích sàn sử dụng, tăng chiều cao trần và mở rộng kho lưu trữ. Thiết kế lại đáp ứng các nhu cầu chức năng này đồng thời giới thiệu một ngôn ngữ thẩm mỹ năng động, thanh lịch được xác định bởi ánh sáng, hình thức và vật liệu.

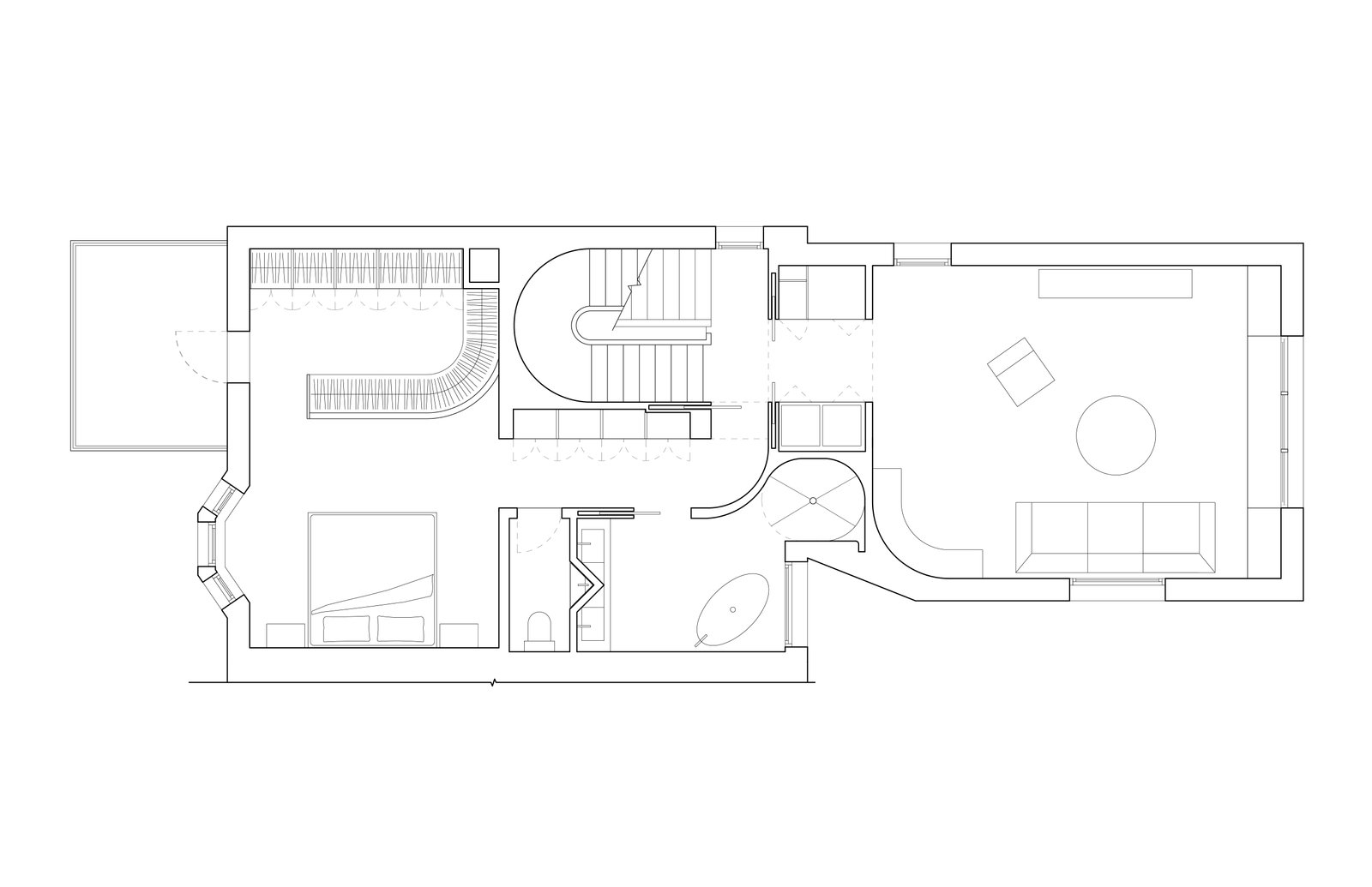
Giải pháp thiết kế: Các tác phẩm điêu khắc tích hợp và vách ngăn thể tích định hình trải nghiệm không gian của ngôi nhà. Được chế tạo bằng vật liệu bền, dễ tiếp xúc, các yếu tố này đan xen qua từng cấp độ, cân bằng các góc vuông sắc nét với những đường cong mềm mại. Các vách ngăn và âm tường giúp phân định không gian theo nhiều cách khác nhau, đóng vai trò là nơi lưu trữ và chỗ ngồi, đồng thời biến các căn phòng nén, rời rạc trước đây thành một tổng thể gắn kết.

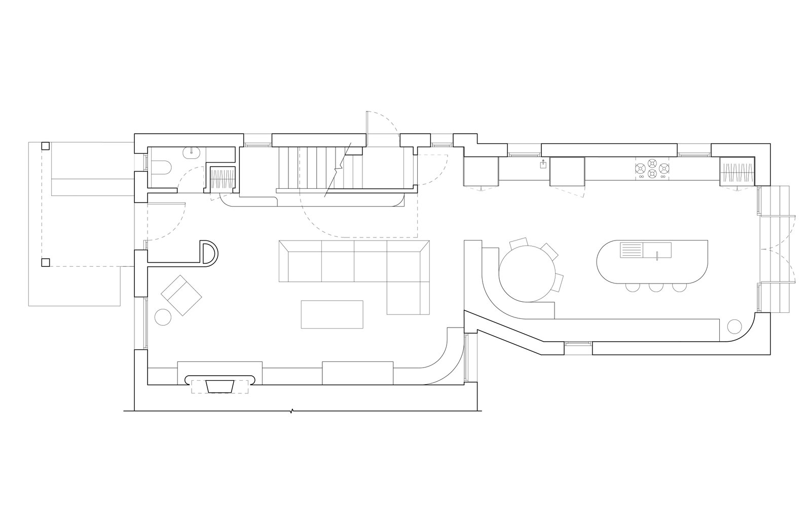
Thay vì các phòng kín truyền thống, các không gian được sắp xếp linh hoạt, với mỗi tầng được chia thành hai khu vực cân bằng giữa sự cởi mở và riêng tư. Tầng trệt, được thiết kế để giải trí cũng như cuộc sống gia đình, mở ra một loạt các khu vực riêng biệt nhưng được kết nối với nhau. Các chi tiết đặt riêng làm phong phú thêm trải nghiệm: chỗ ngồi được gia công uốn cong quanh phòng khách và cửa tủ quần áo được cắt để ôm lấy bậc thang tròn khi mở ra. Sàn bê tông được làm nóng bằng bức xạ tạo thành một nền tảng liên tục mà từ đó các yếu tố đúc tại chỗ xuất hiện: ví dụ, một gian ăn cong nép mình trong nhà bếp, chiếu nghỉ cầu thang có chỗ ngồi, lò sưởi nguyên khối và bảng điều khiển phương tiện.

Trên tầng hai, cửa trượt lõm và ngưỡng cửa dày cho phép thư viện và phòng ngủ chính mở ra hoặc đóng lại để tách biệt. Tầng ba được xây dựng lại biến căn gác mái chật chội thành không gian sống bổ sung và tầng hầm chưa hoàn thiện trước đây giờ đây là nơi nghỉ dưỡng đa chức năng với spa và sảnh khách.

Nhà Rathnelly

Ảnh © Félix Michaud

Cấu trúc và vật liệu: Các biện pháp can thiệp mang tính cấu trúc sâu rộng đã giúp sắp xếp lại quy hoạch một cách cơ bản và bổ sung thêm 60% khu vực chức năng. Chúng bao gồm việc hạ thấp tấm tầng hầm xuống hơn 4 feet, phân bổ lại các tấm sàn để tăng chiều cao trần và xây dựng lại mái phía sau cũng như tất cả nội thất. Các biện pháp can thiệp từ bên ngoài, bao gồm phòng ngủ tập thể, ban công và hiên nhà mới, tăng cường sự kết nối của ngôi nhà với bên ngoài trong khi vẫn duy trì mối quan hệ của nó với cảnh quan đường phố lịch sử. Một bảng màu gồm bê tông đúc tại chỗ, đồ gỗ bằng gỗ óc chó, thạch cao và đá tạo ra sự liên tục về vật liệu xuyên suốt nội thất.

Thông tin bổ sung
Ngày hoàn thành: tháng 8 năm 2024
Kích thước trang web: 0,7 mẫu Anh
Tổng chi phí xây dựng: Bị giữ lại
Khách hàng/Chủ sở hữu: Bị giữ lại

Nhà Rathnelly
Nhà Rathnelly
Nhà Rathnelly

Bản vẽ (mặt bằng tầng một, tầng hai, tầng ba) do Studio VAARO cung cấp, bấm vào để phóng to

Tín dụng

Kiến trúc sư
Studio VAARO
80A Đại lộ Lowther
Toronto, ON, M5R 1E1, Canada
studiovaaro.com

Nhóm dự án
Aleris Rodgers, Francesco Valente-Gorjup, Shengjie Qiu, Liam Hall

kỹ sư
Kỹ sư kết cấu: Kỹ thuật kết cấu Kieffer
Kỹ sư cơ khí: RDZ Engineers Ltd

Tổng thầu
Xây dựng Whitaker

Nhiếp ảnh gia
Félix Michaud

Thông số kỹ thuật

Tấm lợp
Tấm lợp lắp ghép: Soprema

Tấm ốp bên ngoài
Gỗ: Chọn cây tuyết tùng

Cửa
Lối vào: Cửa Bauhaus
Cửa kim loại: UD Vinduer
Cửa kính: Loewen

cửa sổ
Khung kim loại: UD Vinduer

kính
Thủy tinh: Nhiệt kế
Giếng trời: Velux

Hoàn thiện nội thất
Đồ gỗ và đồ gỗ tùy chỉnh: Phòng thí nghiệm nội các
Sơn và vết bẩn: Benjamin Moore
Bề mặt đặc biệt: Thạch cao Tadelakt
Gạch lát sàn và tường: Daltile
sàn gỗ: Sàn gỗ Unik

Chiếu sáng
đèn downlight: Flos, FontanaArte, Artemide
Ánh sáng nhiệm vụ: Davide Groppi
ngoại thất: Chiếu sáng công nghệ
Hệ thống điều chỉnh độ sáng hoặc điều khiển ánh sáng khác: Forbes & Lomax, Lutron

Hệ thống nước
Vòi: Fantini, Soho, M Pro, Hansgrohe
vòi hoa sens: Đồng thau
bồn tắm: Victoria+Albert, Kohler
nhà vệ sinh: Duravit



Source link

Tin cùng loại