Nhà Stoke Newington giữa sân thượng kiểu Victoria, ảnh mở rộng nhà ở Đông Bắc Luân Đôn, bất động sản hiện đại Hackney
16 tháng 12 năm 2025
Thiết kế: Studio xung quanh
Địa điểm: Stoke Newington, Hackney, Đông Bắc Luân Đôn, Anh, Vương quốc Anh

Ảnh: Lorenzo Zandri
Nhà Stoke Newington, Bất động sản Đông Bắc Luân Đôn
Stoke Newington House là phần mở rộng và đầy đủ tân trang lại sân thượng thời Victoria ở Stoke NewingtonHackney, Luân Đôn. Dự án làm lại kiểu sân thượng quen thuộc ở London, biến một ngôi nhà ba phòng ngủ tối tăm thành một ngôi nhà gia đình bốn phòng ngủ yên tĩnh, tràn ngập ánh sáng, được kết nối chặt chẽ với khu vườn tươi tốt hướng về phía Nam.

Ngôi nhà nằm giữa sân thượng trên một con phố dân cư yên tĩnh và gắn liền với một người hàng xóm có sân vườn thấp hơn khoảng 1,5 mét. Bước này trong các cấp độ tạo ra sự nhạy cảm xung quanh chiều cao, khối lượng và độ che phủ, những yếu tố này đã định hình cả chiến lược quy hoạch và phản ứng kiến trúc.

Dự án phải mở rộng và mở rộng ngôi nhà trong khi vẫn giữ được sự khiêm tốn và thân thiện với hàng xóm, tránh cảm giác mở rộng quá mức cho khu vườn phía dưới bên cạnh.

Ở tầng trệt, phần mở rộng kết hợp giữa bên hông và phía sau thay thế dãy phòng di động bằng không gian bếp-ăn rộng rãi, giờ đây trở thành trung tâm xã hội của ngôi nhà. Hai trục mới được thiết lập từ lối vào khu vườn, kéo các mặt bằng lại với nhau và tạo khung cho tầm nhìn dài xuyên qua ngôi nhà. Mặt tiền bằng kính có chiều cao đầy đủ, bậc thang giúp tối đa hóa ánh sáng ban ngày và tầm nhìn ra cây cối, đồng thời phá vỡ khối lượng của phần mở rộng một cách trực quan khi nhìn từ khu vườn liền kề.

Phía trên phần mái, đèn chiếu sáng hình chữ L mang ánh sáng vào từ nhiều hướng và đánh dấu sự kết nối giữa cấu trúc cũ và mới. Các cấu hình lại bổ sung ở tầng này bao gồm một phòng thay đồ và một phòng ngủ trung tâm, được kết nối lỏng lẻo với quầy lễ tân phía trước trang trọng hơn, để gia đình có thể chiếm dụng tầng trệt theo nhiều cách khác nhau trong ngày – từ đọc sách yên tĩnh đến tụ tập đông người hơn.

Các tầng trên được làm lại hoàn toàn. Ở tầng một, kế hoạch được tổ chức lại để tạo thành một dãy phòng chính với tủ quần áo không cửa ngăn và phòng tắm riêng, phòng tắm gia đình, phòng ngủ thứ hai, phòng giặt và phòng đựng thức ăn tích hợp hỗ trợ sinh hoạt hàng ngày. Phần mở rộng mái nhà mới và phòng ngủ tập thể phía sau thêm tầng thứ ba có phòng làm việc tại nhà và phòng ngủ dành cho khách với phòng tắm riêng, giúp ngôi nhà linh hoạt hơn theo thời gian khi mô hình công việc và nhu cầu gia đình phát triển. Đèn mái phía trên cầu thang và phòng tắm vòi sen riêng mang ánh sáng ban ngày vào chiều sâu của mặt bằng và tạo ra những khoảnh khắc kết nối nhỏ hàng ngày với bầu trời.

Bên ngoài, phần mở rộng được thể hiện như một sự bổ sung hiện đại nhẹ nhàng cho sân hiên xây ban đầu. Gạch nhạt, khung nhôm mỏng có tông màu sáng và các chi tiết phần đầu tinh tế cho đến kính “hiệu ứng vô cực” có chiều cao tối đa mang lại cho tập sách mới một nét thanh mảnh, gần giống như một mái nhà khi nhìn từ vườn.

Cấu trúc bậc thang và chiều cao mái hiên được kiểm soát giúp công trình bổ sung nằm yên tĩnh bên cạnh khu đất lân cận thấp hơn, giải quyết chênh lệch độ cao 1,5 mét mà không lấn át nó. Bên trong, một bảng màu hạn chế của các vật liệu đất, tự nhiên gắn kết vải cũ và vải mới. Đồ mộc bằng gỗ sồi, sàn đá trải dài từ nội thất đến sân hiên và các chi tiết bằng đồng ấm áp được đặt trên tông màu trung tính, mềm mại, tạo ra không gian đủ yên tĩnh và chắc chắn cho cuộc sống gia đình hàng ngày.

Bên cạnh việc tái cấu hình không gian, dự án còn nâng cấp lớp vỏ hiện có bằng cách cải thiện khả năng cách nhiệt, lắp kính hiệu suất cao và các lỗ mở được kiểm soát cẩn thận hơn. Những biện pháp can thiệp này lặng lẽ cải thiện sự thoải mái về nhiệt và hiệu suất năng lượng so với ngôi nhà thời Victoria ban đầu, hỗ trợ ý định ở lại ngôi nhà lâu dài của khách hàng. Mở rộng và tân trang lại Nhà Stoke Newington
BÁO GIÁ KHÁCH HÀNG
Bản tóm tắt của chúng tôi dành cho Ambient Studio là tạo ra một ngôi nhà thanh bình tôn vinh vẻ ngoài từ bên trong, tràn ngập ánh sáng tự nhiên và được thiết kế chu đáo cho gia đình đang phát triển của chúng tôi.

Việc tạo ra ‘khoảnh khắc’ là điều không thể thiếu trong các cuộc trò chuyện ở giai đoạn thiết kế của chúng tôi, vì vậy, chúng tôi rất vui vì ngôi nhà của mình giờ đây mang đến những trải nghiệm và cảm giác đặc biệt này mỗi ngày. Chúng tôi đặc biệt yêu thích cách nhà bếp và phòng ăn của chúng tôi lôi cuốn tất cả màu sắc và độ sáng từ khu vườn bên ngoài và bầu trời vào bên trong một cách hào hứng.

Stoke Newington House, Luân Đôn – Thông tin Bất Động Sản
THÔNG TIN DỰ ÁN/ SỰ THẬT
Tên dự án:
Nhà Stoke Newington
Vị trí:
Stoke Newington, Hackney, Luân Đôn
phạm vi:
Mở rộng tầng trệt / Mở rộng mái nhà / Cấu hình lại và tân trang lại toàn bộ
Tòa nhà / Chỗ ở:
Hiện tại: Sân thượng giữa kiểu Victoria / 2 tầng – 3 phòng ngủ / 1 phòng tắm
Đã hoàn thành: Sân thượng kiểu Victoria / 3 tầng – 4 phòng ngủ / 3 phòng tắm

Diện tích sàn:
Hiện tại: 110,3m2
Đã hoàn thành: 165,0 m2
Ngày:
Xây dựng: 2023-2024
Hoàn thành: 2024
Trị giá:
Xấp xỉ. Chi phí dự án: £600.000 (bao gồm thiết kế nội thất, đồ đạc, phụ kiện và cảnh quan)
Đội/Tín dụng:
Kiến trúc sư: Ambient Studio
Kỹ sư kết cấu: Elite Designers
Nhà thầu: Tandem London
Nhiếp ảnh gia: Lorenzo Zandri
BẢN VẼ
PHẦN
Phần CC hiện tại:
Phần CC đề xuất:
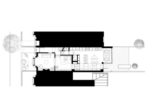
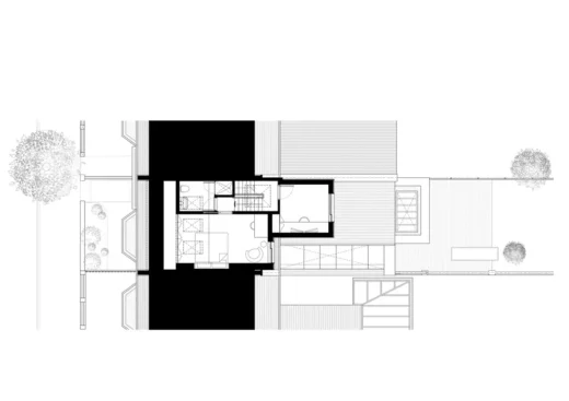
KẾ HOẠCH
Sơ đồ tầng trệt đề xuất:
Sơ đồ tầng một được đề xuất:
Sơ đồ tầng hai được đề xuất:
Tất cả các bản vẽ được cung cấp bởi Ambient Studio, người giữ quyền sở hữu bản quyền đối với tất cả các bản vẽ.
Stoke Newington House, ngôi nhà giữa sân thượng thời Victoria hình ảnh / thông tin nhận được 151225 từ Ambient Studio
Địa điểm: Stoke Newington, Luân Đôn, Anh, Vương quốc Anh
Luân Đôn Nhà
Thuộc tính của Stoke Newington
Nhà ở Stoke Newington – lựa chọn bất động sản gần đây từ kiến trúc sư điện tử:
Ngôi nhà xanh tươi Stoke Newington
Kiến trúc sư: CÓ THỂ
ảnh © Rick Pushinsky
Studio ở Stoke Newington
Thiết kế: Kiến trúc sư Bradley Van Der Straeten
ảnh: Ewald Van Der Straeten
Nhà Barretts Grove ở Stoke Newington
Thiết kế: Amin Taha + Làm việc nhóm
Nhà Stoke Newington
Nhà xanh Newington ở Luân Đôn
Luân Đôn Nhà
Tòa nhà Trường học Stoke Newington
Đừng di chuyển, hãy cải thiện! Cuộc thi
Phòng Sun Rain của Tonkin Liu người chiến thắng Đừng di chuyển, hãy cải thiện! 2018
Đường Mapledene, Hackney:
++
Thiết kế tòa nhà Luân Đôn
Thiết kế kiến trúc London đương đại
Liên kết Kiến trúc Luân Đôn – danh sách theo thời gian
Tin tức kiến trúc London
Chuyến tham quan kiến trúc Luân Đôn – chuyến đi dạo quanh thành phố thủ đô Vương quốc Anh của kiến trúc sư điện tử
Văn phòng kiến trúc sư London
++
Những ngôi nhà ở Luân Đôn
Step House North London Bất động sản mở rộng
Tòa nhà Elm, Bắc Luân Đôn
Nhà Thang
Nhà cột
Bình luận/hình ảnh cho Nhà Stoke Newington, ngôi nhà giữa sân thượng thời Victoria, Stoke Newington, phía đông bắc London chào mừng trang.