✕
Trước đó là không gian phụ dành cho người làm xúc xích, và trước đó là nhà thờ Chính thống giáo Hy Lạp, nơi được xây dựng sau đó đó là một vũ trường, tòa nhà gạch nhỏ ngay gần Đại lộ số 4 ở Công viên Sunset ở Brooklyn, ban đầu được dùng làm chi nhánh địa phương của Câu lạc bộ Nam và Nữ. Một dòng chữ khó hiểu trên cửa, “S&B Ass’n”—dành cho “anh chị em”? “xúc xích và xúc xích”?—có thể gợi ý về cách sử dụng trước đây của nó; Sơ đồ nội thất của nó cũng vậy, một tầng chính rộng rãi thích hợp cho các điệu valse và foxtrot, với tầng hầm sẵn sàng chơi lô tô bên dưới. Ngoài ra, còn lại rất ít dấu vết của bất kỳ kiếp trước nào của tòa nhà, kể từ khi nó được xây dựng vào năm 1930.

1
Một cầu thang mới, làm bằng polypropylen đục lỗ màu xanh lam (đầu trang & 2), nối không gian làm việc (1) với sân thượng. Ảnh © Brooke Holms, bấm vào để phóng to.

2
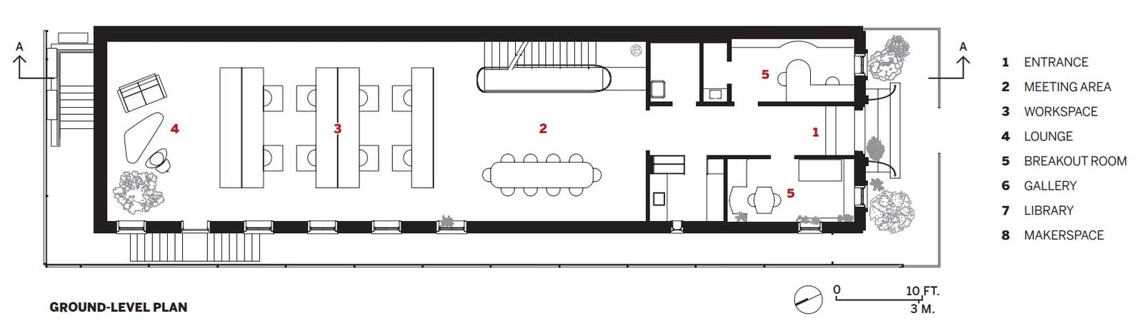
Tuy nhiên, điều gì đó mang tinh thần cộng đồng vẫn còn tồn tại trong quá trình chuyển đổi mới nhất, được thực hiện bởi công ty O’Neill Rose Architects. Được dẫn dắt bởi nhóm vợ chồng Devin O’Neill và Faith Rose, hoạt động này đã biến không gian rộng 3.800 foot vuông thành một môi trường làm việc tràn ngập ánh sáng và thoải mái, được thiết kế riêng cho nhu cầu của một số khách hàng rất khó tính: chính các nhà thiết kế hiện sử dụng nó làm trụ sở cho cả studio chung của họ và cho Design Studies Collaborative (DSC), một tổ chức tư vấn lập kế hoạch phi lợi nhuận cho các nhóm cộng đồng do Rose quản lý. Văn phòng chia sẻ còn bao gồm phòng khách, không gian tổ chức sự kiện, thư viện tài nguyên và cửa hàng mẫu. Cô nói: “Chúng tôi muốn có một không gian giống như không gian công cộng hơn là không gian riêng tư. “Chúng tôi luôn để cánh cửa gỗ bên ngoài mở.”

3

4
Đồ gia công và đồ nội thất tùy chỉnh tạo ra không gian làm việc linh hoạt (3 & 4). Ảnh © Brooke Holms (3), Michael Moran/OTTO (4)
Hành trình xây dựng tòa nhà bắt đầu khi bộ đôi này khai trương văn phòng cùng tên vào năm 2008. Trong khi O’Neill lãnh đạo hoạt động tại không gian studio trước đây của họ ở DUMBO, Rose làm việc trong chính quyền thành phố, đầu tiên là Giám đốc Thiết kế Xuất sắc tại Sở Thiết kế và Xây dựng và sau đó (theo sự bổ nhiệm của thị trưởng) là giám đốc điều hành của Ủy ban Thiết kế Công cộng của New York. Kể từ khi cô rời khỏi cơ quan công quyền vào năm 2016, công ty đã nhận được nhiều khoản hoa hồng mới, ví dụ như cải tạo dãy nhà ở Manhattan và Brooklyn và một câu lạc bộ tư nhân ở Lower East Side. Đồng thời, sáng kiến DSC của Rose đã thu hút được sự chú ý, với một loạt dự án phục vụ cộng đồng gần bờ sông Brooklyn và xa như New Hampshire. Khả năng nộp tiền chuyên nghiệp ngày càng mở rộng của cặp đôi này đòi hỏi phải có những hoạt động đào mới hơn và tốt hơn; ba năm trước, O’Neill đã tìm được đúng chỗ. “Tôi đang lái xe vòng quanh và đi ngang qua tòa nhà có vẻ đã bị cháy rụi này,” anh nói. “Tôi nghĩ, ‘Cái đó sẽ rẻ thôi.’”
Phần lớn mặt tiền bằng gạch đã được thay thế. Ảnh © Brooke Holms
Mặc dù việc mua bất động sản dường như nằm trong tầm tay nhưng việc phục hồi nó sẽ là một công việc nặng nhọc. O’Neill nói: “Người làm xúc xích đã đục một lỗ lớn trên bức tường gạch của bữa tiệc. Để ngỏ một phần cho các yếu tố, không có bất kỳ hệ thống cơ khí nào hoạt động, tòa nhà chỉ là một lớp vỏ thô, bị xói mòn cấu trúc nghiêm trọng ở mặt tiền chính và cuối cùng sẽ phải thay thế phần lớn gạch. Vị trí hệ thống ống nước có thể được giữ nguyên nhưng cần phải có những đường ống hoàn toàn mới; mái nhà vẫn còn nguyên nhưng cần thêm một lớp cách nhiệt. Tuy nhiên, về mặt không gian, tòa nhà hoàn toàn phù hợp với dự án mà cặp đôi đã ấp ủ: phòng ăn cũ ở tầng dưới là nơi lý tưởng cho một cửa hàng kiểu mẫu, trong khi các phòng ở phía tiền sảnh cũ có thể được tái sử dụng làm văn phòng riêng. Thậm chí còn có tiềm năng tạo ra một sân hiên ngoài trời được nhiều người ưa chuộng — mặc dù việc ra ngoài đòi hỏi một chút khéo léo.
Tầng hầm chứa một cửa hàng mô hình, không gian trưng bày và thư viện tài liệu. Ảnh © Michael Moran/OTTO
Để nguyên phần lớn kết cấu hiện có của tòa nhà, các nhà thiết kế đã thực hiện hai biện pháp can thiệp đặc trưng để ngay lập tức thu hút sự chú ý của du khách. Các tầng là đầu tiên. Một người bạn ở Đan Mạch đã giao việc thiết kế cho một nhà thầu trong thành phố, người này tình cờ có một số lượng lớn ván tro và không có mục đích sử dụng cụ thể nào; Rose và O’Neill đã đến và yêu cầu nhà thầu lắp đặt chúng như nguyên trạng, chỉ phủ một lớp dầu hạt lanh nhẹ để tăng thêm độ bóng. Thứ hai, và bắt mắt nhất, là cơ chế mà các kiến trúc sư muốn thực hiện giấc mơ tiệc nướng mùa hè của họ: đi qua một vết cắt mới trên trần dầm gỗ (khoảng trống được giằng bởi các dầm kết cấu thép mới), một cầu thang khổng lồ bằng polypropylen đục lỗ hiện dẫn lên mái nhà phía trên. Được cố định vào tường bằng các thanh mảnh và được cố định bằng các chốt hàn, hệ thống mô-đun tông màu xanh lam được chế tạo theo yêu cầu của các thành viên Brooklynites Argosy Designs. Trong một dự án tái sử dụng thích ứng với rất ít thứ còn lại để tái sử dụng, cầu thang trở thành một điểm nhấn ấn tượng.
Một giếng trời mới cho phép ánh sáng vào studio. Ảnh © Michael Moran/OTTO
Rose nói: “Tôi nghĩ điều chúng tôi luôn hướng tới là cảm giác khiêm tốn. “Chúng tôi chỉ nói, ‘Được rồi, đây là ngân sách, làm thế nào chúng ta có thể làm cho nó trở nên thú vị?'” Được nhấn mạnh bởi những điểm nhấn tinh tế như đồ đạc bằng gốm (cũng có nguồn gốc từ kết nối của họ ở Đan Mạch), tính thời thượng của văn phòng mới kết hợp thú vị với tham vọng công dân của Design Studies Collaborative, mà Rose mô tả là cam kết “tìm kiếm các chiến lược đô thị giúp cộng đồng giữ nguyên vị trí bất chấp quá trình đô thị hóa”. Đặc tính đó dường như đã phát huy tác dụng đối với không gian riêng của các nhà thiết kế, với những người hàng xóm thường ghé qua kể từ khi dự án bắt đầu. O’Neill nói: “Mọi người sẽ ghé qua và đi chơi với chúng tôi. “Chúng tôi muốn mọi người biết tòa nhà đã hoạt động trở lại.”
Hình ảnh lịch sự của O’Neill Rose Architects
Hình ảnh lịch sự của O’Neill Rose Architects
Hình ảnh lịch sự của O’Neill Rose Architects
Tín dụng
Kiến trúc sư:
Kiến trúc sư O’Neill Rose – Devin O’Neill, hiệu trưởng; Hans Villamayor, giám đốc dự án cấp cao; Andrew Martin, nhà thiết kế
Kỹ sư:
TYLin (cấu trúc)
Nhà thầu:
Mắt (máy xay và sàn); Argosy (đồ kim loại); Made A Mano (gạch)
Khách hàng:
Hợp tác nghiên cứu thiết kế
Kích thước: 3.800 feet vuông
Trị giá:
Bị giữ lại
Hoàn thành:
tháng 6 năm 2024
Nguồn
Hoàn thiện bên ngoài:
Benjamin Moore
Windows:
Lepage
Giếng trời:
Tầm nhìn kính
Cửa:
Nhà máy ở Creekside
Phần cứng:
Dòng D
Sàn:
Woodnote, Vải sơn nội thất Forbo, Dinesen
Chiếu sáng:
Claesson Koivisto Rune, Ingo Maurer, Goodlite, RBW
Hệ thống nước:
Nhà máy Creekside, Watermark, Duravit