Quản lý dự án Makan & Phát triển thiết kế nội thất biệt thự_on Căn nhà đẹp

by admin



Bối cảnh dự án

Dự án này là khu biệt thự dân cư cao cấp mở rộng được thiết kế cho một khách hàng tư nhân ở Amman, Jordan. Phạm vi tập trung vào việc tạo ra nội thất tân cổ điển hiện đại, cân bằng tỷ lệ kiến ​​trúc cổ điển với vật liệu, ánh sáng và đồ nội thất hiện đại. Thiết kế nhấn mạnh sự hài hòa về không gian, ánh sáng tự nhiên và các chi tiết tinh tế trên các khu vực sinh hoạt, phòng ngủ, phòng tắm, tủ quần áo không cửa ngăn và không gian văn phòng riêng, mang đến trải nghiệm dân cư cực kỳ sang trọng và gắn kết.










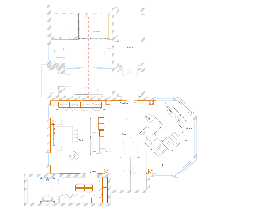
Sơ đồ mặt bằng

Phát triển thiết kế nội thất cho phần mở rộng biệt thự tư nhân, bao gồm phân vùng không gian, quy hoạch bố trí đồ nội thất và nghiên cứu lưu thông chức năng dựa trên bố cục kiến ​​trúc hiện có.


Biệt thự – Phòng ngủ (Phòng Master)

Phòng ngủ chính được thiết kế như một nơi nghỉ ngơi yên tĩnh, tinh tế kết hợp giữa kiến ​​trúc tân cổ điển hiện đại với tiện nghi đương đại. Tấm ốp tường cổ điển, tỷ lệ cân đối và bảng màu trung tính được bổ sung bởi chất liệu dệt mềm mại, hệ thống chiếu sáng tích hợp và kính suốt từ trần đến sàn, tạo nên một không gian ngủ sang trọng nhưng thanh bình phù hợp với phong cách sống của khách hàng.


Biệt thự – Phòng vẽ, Phòng khách

Phòng vẽ được thiết kế như một không gian sống trang trọng nhưng thân thiện, kết hợp các yếu tố kiến ​​trúc tân cổ điển hiện đại với nội thất hiện đại. Trần nhà cao, chi tiết tường tinh tế và bảng màu vật liệu trung tính được cân bằng với kết cấu mềm mại và hệ thống chiếu sáng được bố trí cẩn thận, tạo nên một môi trường tinh tế cho cuộc sống và giải trí hàng ngày.


Biệt thự – Phòng ngủ

Phòng ngủ này phản ánh sự tiếp nối gắn kết ngôn ngữ tân cổ điển hiện đại của biệt thự, pha trộn các chi tiết kiến ​​trúc trang nhã với đồ nội thất và đồ hoàn thiện hiện đại. Thiết kế ưu tiên sự thoải mái, ánh sáng tự nhiên và cách bố trí công năng, tạo nên không gian riêng tư tinh tế phù hợp cho gia đình sử dụng hoặc tiếp khách.


Biệt thự – Phòng ăn, Phòng ăn sáng

Khu vực ăn uống có sự kết hợp giữa tỷ lệ kiến ​​trúc cổ điển với đồ nội thất hiện đại và ánh sáng nổi bật. Một bàn ăn điêu khắc cố định không gian, trong khi ánh sáng nhiều lớp và chất liệu hoàn thiện cao cấp nâng cao cảm giác sang trọng và gần gũi, khiến khu vực này phù hợp cho cả việc ăn uống trang trọng lẫn sử dụng hàng ngày.


Biệt thự – Phòng thay đồ

Tủ quần áo không cửa ngăn được thiết kế như một không gian thay đồ trang nhã, ngăn nắp với tủ được thiết kế riêng, hệ thống chiếu sáng tích hợp và bảng màu vật liệu trung tính. Cách bố trí tối đa hóa hiệu quả lưu trữ trong khi vẫn duy trì tính thẩm mỹ tinh tế, bổ sung cho phòng ngủ chính và nâng cao trải nghiệm người dùng hàng ngày.


Biệt thự – Phòng tắm

Thiết kế phòng tắm nhấn mạnh sự sang trọng tinh tế thông qua các đường nét gọn gàng, lớp hoàn thiện bằng đá cao cấp và hệ thống chiếu sáng được tích hợp cẩn thận. Bố cục tối giản được kết hợp với các chi tiết tinh tế và đồ đạc cao cấp, mang đến bầu không khí giống như spa trong khi vẫn duy trì chức năng và sự hài hòa về hình ảnh với ý tưởng nội thất tổng thể.


Biệt thự – Tiền sảnh, Hành lang

Tiền sảnh và không gian lưu thông được thiết kế để tạo ấn tượng mạnh mẽ đầu tiên thông qua các đường nét gọn gàng, sự tương phản vật liệu tinh tế và ánh sáng tích hợp. Cách bố trí tăng cường tính liên tục về mặt hình ảnh và hướng dẫn chuyển động trong biệt thự trong khi vẫn duy trì bầu không khí yên tĩnh, tinh tế phù hợp với ngôn ngữ thiết kế tổng thể.


Biệt Thự – Văn Phòng, Phòng Hội Nghị

Văn phòng riêng được hình thành như một không gian làm việc tinh tế, tiện dụng, kết hợp giữa thiết kế hiện đại với vật liệu ấm áp và giải pháp lưu trữ tùy chỉnh. Giá đỡ tích hợp, ánh sáng được kiểm soát và bảng màu trung tính tạo ra một môi trường thoải mái và tập trung, phù hợp cho công việc chuyên nghiệp trong khung cảnh dân cư.


Kết xuất nội thất khác

Bản vẽ này thể hiện sự liên tục về mặt không gian giữa khu vực sinh hoạt và ăn uống, được thống nhất thông qua việc lựa chọn vật liệu và chi tiết kiến ​​trúc nhất quán. Ánh sáng tự nhiên, tông màu trung tính và đồ nội thất hiện đại được kết hợp với các yếu tố cổ điển để tạo ra trải nghiệm nội thất nhà ở sang trọng, gắn kết.










Tin cùng loại