Studio Kiến trúc The Wall Thiết kế nội thất Rừng thẳng đứng Tirana Boeri_on Căn nhà đẹp

by admin



Bối cảnh dự án

Nằm ở trung tâm khu dân cư danh giá nhất Tirana, Rừng thẳng đứng, căn hộ rộng 180 m2 này thể hiện sự kết hợp hoàn hảo giữa kiến ​​trúc hiện đại, thiết kế bền vững và sự sang trọng của đô thị. Dự án nhấn mạnh sự hài hòa giữa thiên nhiên và cuộc sống thành phố, với từng chi tiết được thiết kế để mang lại sự thoải mái, sang trọng và cân bằng môi trường. Căn hộ có nội thất rộng rãi với cửa sổ kính suốt từ trần đến sàn giúp các phòng tràn ngập ánh sáng tự nhiên, cho tầm nhìn toàn cảnh Tirana










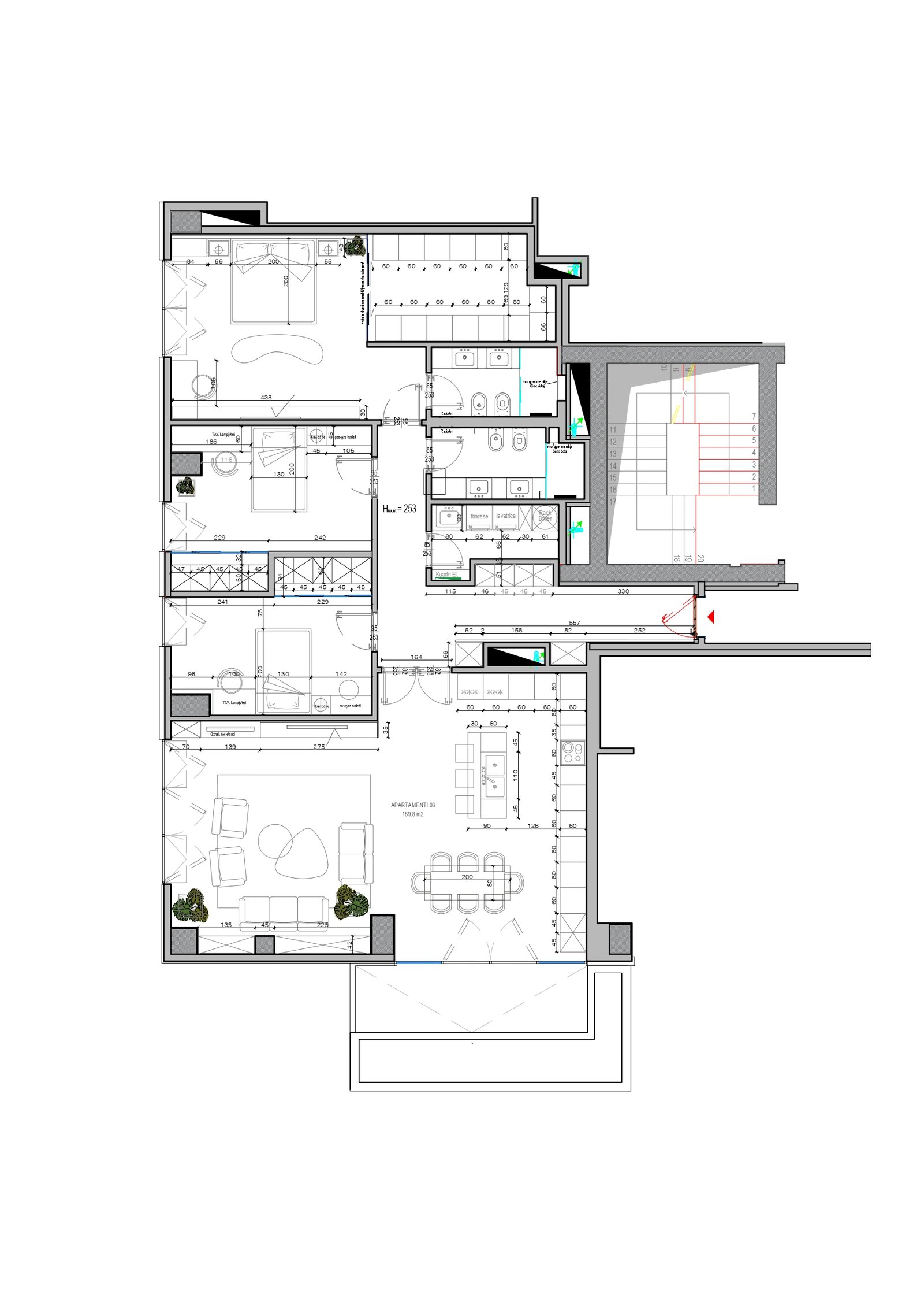
Sơ đồ mặt bằng

Căn hộ có cách bài trí tiện dụng gồm 3 phòng ngủ, phòng khách rộng rãi, bếp mở, 2 phòng tắm và kho chứa đồ


Căn hộ – Phòng ngủ (Master room)

Đi vào tủ quần áo


Căn hộ – Phòng ngủ

Phòng ngủ 1

Phòng ngủ 1


Căn Hộ – Phòng Ngủ (Kid)

Phòng ngủ 2


Căn hộ – Phòng tắm

Phòng tắm cho phòng ngủ master


Căn hộ – Phòng vẽ, Phòng khách

phòng khách

Lối vào phòng khách và bếp


Căn hộ – Phòng ăn

Ăn uống và nhà bếp


Căn hộ – Bếp

Phòng bếp


Căn Hộ – Hành Lang Công Cộng

Hành lang

Lối vào căn hộ


Kết xuất nội thất khác

Phòng ngủ chính










Tin cùng loại