Sự bổ sung nhẹ nhàng của Office MI—JI

by admin


Hình ảnh trong phương thức.

Vị trí: St. Kilda East, Victoria, Úc
Quy mô dự án: 527 feet vuông (khu vực mới); 731 feet vuông (cải tạo mặt đất)

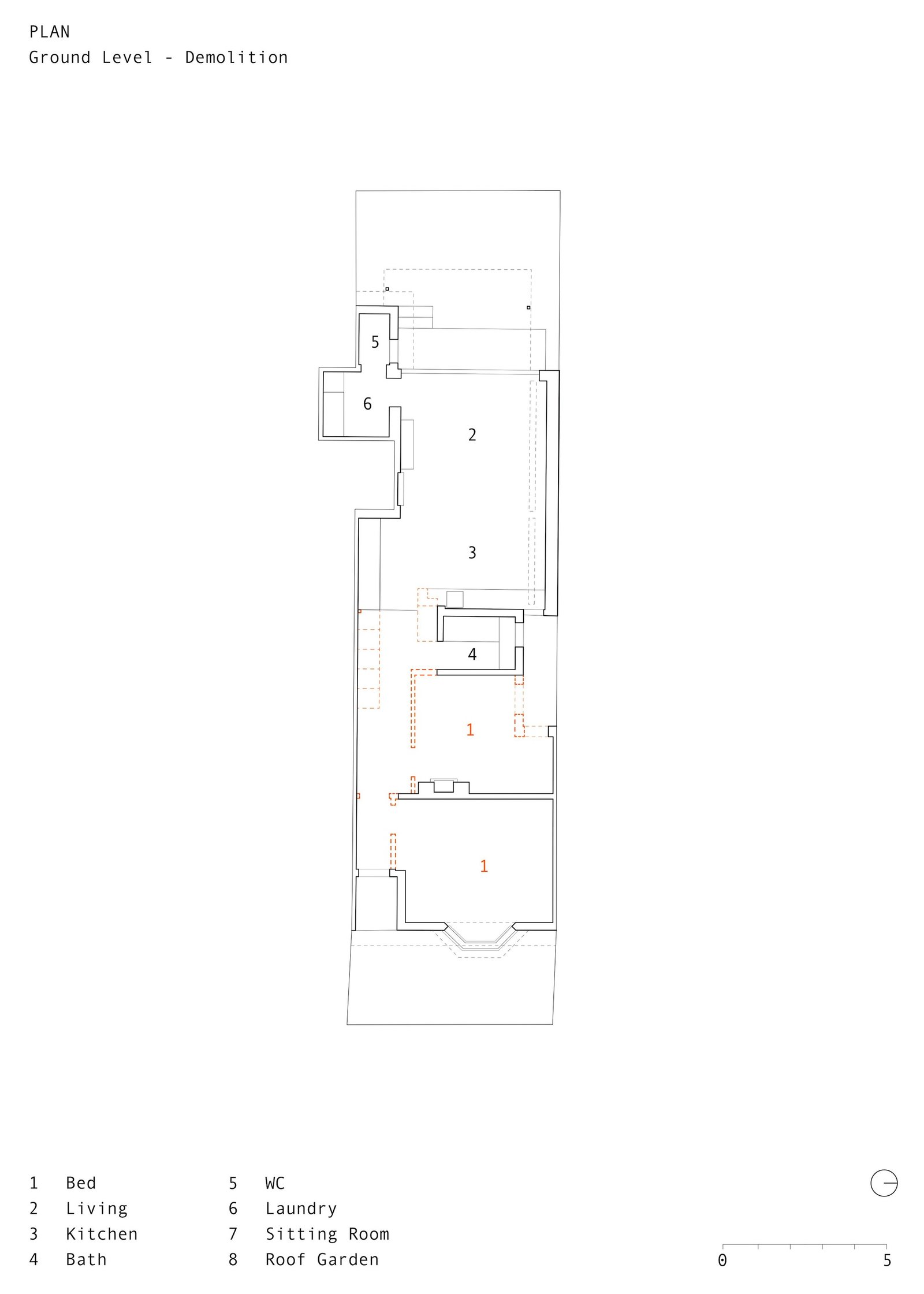
Chương trình: Dự án này bổ sung thêm tầng thứ hai cho ngôi nhà một tầng hiện có, sử dụng kết cấu thép đã được lắp đặt trong quá trình cải tạo trước đó. Công trình bổ sung bao gồm hai phòng ngủ, một phòng tắm và một khu vườn, tất cả đều ở trên cao so với ngôi nhà ban đầu. Được thiết kế để mang lại nhiều không gian, ánh sáng và không khí hơn, cấp độ mới cải thiện khả năng sống mà không cản trở tầm nhìn ra các mái nhà xung quanh. Một cửa sổ lớn, nhiều mặt giúp mở rộng nội thất và đón nhiều ánh sáng ban ngày hơn. Bằng cách xây dựng trên cấu trúc hiện có, dự án tránh được việc phá dỡ và lãng phí không cần thiết. Việc bổ sung này cũng kết nối không gian trong nhà và ngoài trời, đồng thời cho phép nhiều ánh sáng hơn chiếu tới tầng trệt. Nhìn chung, thiết kế mở rộng ngôi nhà theo cách hỗ trợ một gia đình đang phát triển, mang lại sự độc lập cho thanh thiếu niên và không gian chung thoải mái.

Giải pháp thiết kế: Thiết kế tập trung vào việc cải thiện ánh sáng và sự kết nối xuyên suốt ngôi nhà hai tầng. Một cầu thang mở ở trung tâm tổ chức kế hoạch, liên kết các không gian sống chính đồng thời cho phép mỗi phòng duy trì sự độc lập. Được đặt phía trên nhà bếp hiện có, cầu thang dựa trên vật liệu của ngôi nhà ban đầu và trần dốc với cửa sổ trần mang ánh sáng ban ngày vào sâu trong các khu vực chung.

Kính kênh chữ U bao quanh các bức tường bên ngoài của tầng trên. Việc sử dụng kính mờ mang lại ánh sáng ban ngày nhất quán trong khi vẫn duy trì sự riêng tư, với các cửa sổ có thể mở được được bố trí một cách chiến lược để có tầm nhìn và thông gió chéo. Đặt ở độ cao chỉ dưới 8 feet, kính tạo cảm giác rộng mở mặc dù có diện tích nhỏ gọn và đơn giản hóa việc thiết kế cửa ra vào, đồ mộc và khu vực dịch vụ.

Dự án nhấn mạnh việc kiểm soát chi phí và sử dụng hiệu quả vật liệu. Ngoại thất và nội thất được hoàn thiện bằng các vật liệu bền, tương đối rẻ tiền như tôn kim loại (quả cầu nhỏ), ván ép có thể uốn cong và tấm len gỗ. Bằng cách xây dựng trên cấu trúc hiện có, thiết kế giảm thiểu việc phá dỡ và thay đổi cấu trúc. Chỉ có một cột mới được thêm vào để hỗ trợ tầng trên và khu vườn trên mái được đặt cẩn thận giữa các xà nhà hiện có để giảm tác động.

Một sự bổ sung nhẹ nhàng

Ảnh © Ben Hosking

Cấu trúc và vật liệu: Dự án ưu tiên các vật liệu bền, ít tác động và dễ tái sử dụng. Lớp ốp bên ngoài được cố định để thay thế hoặc tái chế đơn giản. Nội thất hoàn thiện nhấn mạnh vào các vật liệu có thể tái tạo, ít VOC, bao gồm sàn gỗ bần và ván ép gỗ cứng có nguồn gốc bền vững. Các tấm len gỗ—được làm từ sợi gỗ, xi măng và đá tái chế—được sử dụng ở cầu thang để tăng độ bền và hiệu suất âm thanh. Tấm thạch cao được sử dụng một cách tiết kiệm để thay thế bằng các giải pháp thay thế tiêu tốn ít năng lượng hơn như ván ép và ván gỗ cứng.

Thông tin bổ sung
Ngày hoàn thành: Tháng 11 năm 2024
Kích thước trang web: 0,4 mẫu Anh
Tổng chi phí xây dựng: $469,300
Khách hàng/Chủ sở hữu: Bị giữ lại

Một sự bổ sung nhẹ nhàng
Một sự bổ sung nhẹ nhàng
Một sự bổ sung nhẹ nhàng
Một sự bổ sung nhẹ nhàng

Bản vẽ lịch sự VĂN PHÒNG MI-JI, bấm vào để phóng to

Tín dụng

Kiến trúc sư
Văn phòng MI—JI
156 George St. Đơn vị 1
Fitzroy 3065
Victoria, Úc
+61 452-055-948
+61 417-038-912
www.mi-ji.com.au

Nhóm dự án
Millie Anderson, Jimmy Carter, đạo diễn

kỹ sư
Kỹ sư kết cấu: RI Brown
Kỹ sư xây dựng: RI Brown

Nhà tư vấn
Cảnh Quan Jala

Tổng thầu
Xây dựng CƠ SỞ

Nhiếp ảnh gia
Ben Hosking

Thông số kỹ thuật

Tấm ốp bên ngoài
Tấm kim loại: Lysaght
Tường rèm kim loại/thủy tinh: Lamberts (kênh U tráng men)
Tấm ốp khác: James Hardie

Tấm lợp
Tấm lợp lắp sẵn: Stramit

cửa sổ
Khung gỗ: Cây tro Victoria có ngưỡng cửa Blackbutt
Khung kim loại: Hệ thống ốp

kính
Thủy tinh: Viridian
Giếng trời: Velux

Cửa
Cửa gỗ, cửa trượt: Cửa Mana

Hoàn thiện nội thất
Đồ gỗ và đồ gỗ tùy chỉnh: Tủ và ngăn kéo có lớp uốn cong, tủ nhôm dày 2 mm, tủ bọc thép có mông màu đen với mặt bàn đúc hẫng SilyOak, lưới điện AC màu tro Victoria tùy chỉnh
Sơn và vết bẩn: Dulux
Tấm phủ tường: Troldtekt
Bề mặt rắn: Render-It-Oz
Gạch lát sàn và tường: Công ty gạch khảm Nagoya
Sàn đàn hồi: Gạch Cork

Chiếu sáng
Chiếu sáng xung quanh nội thất: Flos, Sphera, Artemide
đèn downlight: Hình cầu
Ánh sáng nhiệm vụ: Artemedi
ngoại thất: Unios

Hệ thống nước
Vòi, vòi hoa sen, bồn cầu: Astra Walker
lưu vực: Clark
bồn tắm: Caroma



Source link

Tin cùng loại