Thiết kế nhà phố sang trọng Nancy alaa ở Riyadh_on Build Most

by admin



Bối cảnh dự án

diện tích 250m2. Ý tưởng này tập trung vào việc tạo ra một không gian sống tinh tế và tiện dụng, phản ánh sự sang trọng hiện đại đồng thời tôn trọng lối sống địa phương. Bảng màu trung tính, vật liệu tự nhiên và đường nét gọn gàng đã được lựa chọn cẩn thận để mang lại bầu không khí ấm áp và lôi cuốn. Thiết kế nhấn mạnh vào việc quy hoạch không gian hiệu quả, ánh sáng cân bằng và các chi tiết sang trọng tinh tế để nâng cao trải nghiệm tổng thể của người dùng.

Dự án này trình bày một thiết kế nhà phố tối giản nằm ở Riyadh, Ả Rập Saudi, với tổng diện tích 250 m2. Ý tưởng này tập trung vào sự đơn giản, rõ ràng và chức năng, tạo ra một môi trường sống yên tĩnh và tinh tế. Bảng màu hạn chế, đường nét rõ ràng và không gian gọn gàng xác định phương pháp thiết kế, cho phép ánh sáng tự nhiên và kết cấu vật liệu dẫn đầu. Mọi yếu tố đều được cân nhắc kỹ lưỡng để phục vụ cả mục đích thẩm mỹ và thực tế, đảm bảo một tổng thể hài hòa.










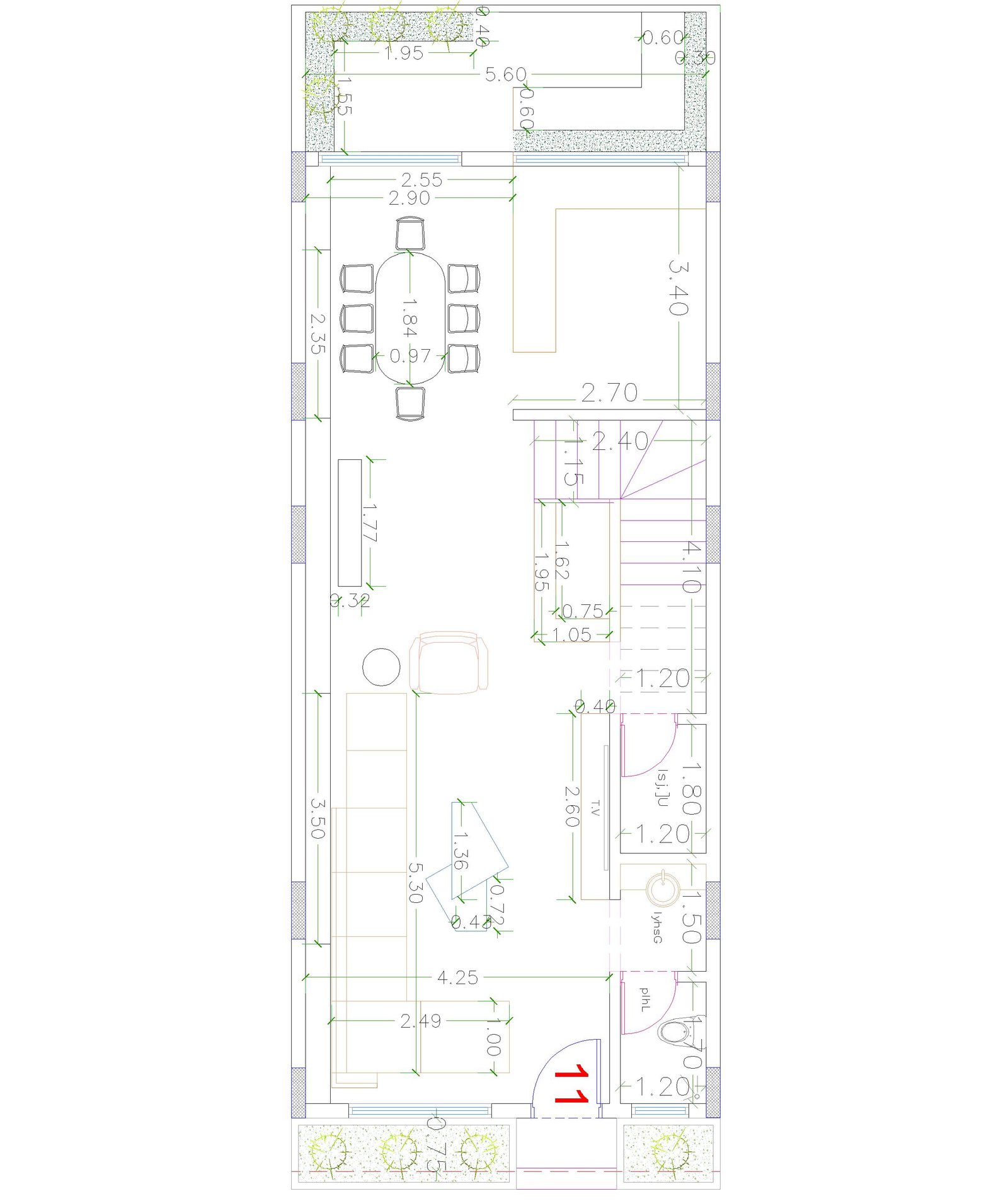
Sơ đồ mặt bằng

Bố cục tầng trệt được thiết kế với ý tưởng không gian mở rõ ràng, tối đa hóa hiệu quả không gian và tính liên tục về mặt thị giác. Lối vào chính dẫn thẳng vào khu vực sinh hoạt thân thiện, tạo cảm giác cởi mở và đơn giản ngay lập tức. Không gian sống được sắp xếp với cách sắp xếp đồ đạc sạch sẽ, cho phép lưu thông thuận lợi trong khi vẫn duy trì một khu vực tiếp khách thoải mái và tiện dụng. Liền kề, khu vực ăn uống được bố trí ở vị trí trung tâm, đóng vai trò là khu vực chuyển tiếp giữa phòng khách và phòng khách.


Biệt thự – Phòng ngủ (Phòng Master)

phòng ngủ chính


Biệt thự – Phòng vẽ, Phòng khách

phòng khách


Kết xuất nội thất khác

thiết kế mái nhà










Tin cùng loại

Leave a Comment