TOP 10+ mẫu nhà cấp 4 hiện đại, xu hướng nhất 2025

by admin


Những mẫu nhà cấp 4 hiện đại đem lại nhiều lựa chọn hoàn hảo cho các chủ đầu tư. Với nhiều phong cách thiết kế độc đáo, đáp ứng đầy đủ tính thẩm mỹ và nhu cầu sử dụng của từng gia đình. Dưới đây là tổng hợp những mẫu nhà hiện đại cấp 4 đẹp, sang trọng và đẳng cấp. Hy vọng sẽ giúp quý gia chủ có thêm những ý tưởng thiết kế cho không gian sống của mình.

1. Nhà cấp 4 hiện đại 3 phòng ngủ

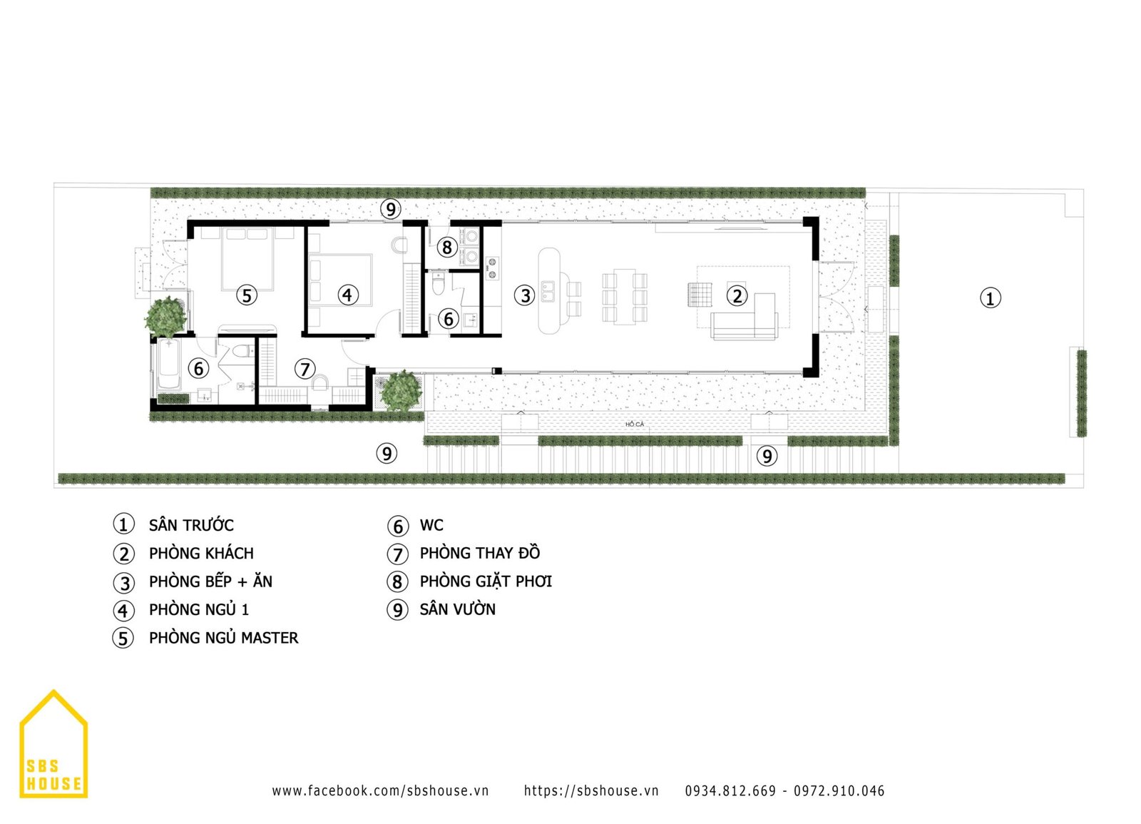
Mẫu nhà cấp 4 hiện đại 3 phòng ngủ mang lại sự kết hợp độc đáo giữa vẻ đẹp kiểu sân vườn cổ điển và thời thượng của nội thất hiện đại, sang trọng. Mọi đồ dùng trong nhà được bố trí gọn gàng và có đường nét đơn giản. Công trình khéo léo tận dụng tính chất trong suốt của vật liệu kính để thay thế cho các vách ngăn bằng tường bê tông, tạo ra sự liên kết mạnh mẽ giữa các không gian. 

Phong cách nội thất hiện đại được thể hiện rõ trong không gian bếp, nổi bật với đảo bếp có bề mặt bằng đá sang trọng, tạo sự tương phản hấp dẫn khi phản chiếu dưới ánh đèn, làm cho ngôi nhà trở nên lung linh hơn. Trong phòng ngủ, việc sử dụng hệ gạch giả đá để trang trí tạo ra một không gian sinh động. Đặc biệt, không gian này được kết nối với thiên nhiên thông qua hệ cửa lùa, mở ra khoảng sân sau với cây cối xanh tươi, tạo ra một không gian sống gần gũi với tự nhiên, làm tăng sinh khí cho phòng ngủ.

Với việc bố trí 3 phòng ngủ, mẫu nhà cấp 4 này mang lại sự tiện nghi, đáp ứng nhu cầu sinh hoạt cho các gia đình có nhiều thành viên sinh sống.

mẫu nhà cấp 4 3 phòng ngủ hiện đại Mẫu nhà cấp 4 hiện đại 3 phòng ngủ phù hợp cho gia đình đông thành viên
nhà cấp 4 hiện đại Phòng ngủ master nhà cấp 4 hiện đại
nhà cấp 4 hiện đại Phòng ngủ con gái trong nhà cấp 4 hiện đại
Mẫu nhà cấp 4 hiện đại Phòng ngủ 3 nhà cấp 4 hiện đại

2. Mẫu nhà cấp 4 nông thôn hiện đại

Các mẫu thiết kế nhà cấp 4 nông thôn hiện đại thường tạo ấn tượng bằng việc sử dụng các mảng hình khối vuông vức và áp dụng vật liệu kính trong suốt như vách kính và cửa kính lớn. Điều này giúp tạo ra sự liên kết giữa không gian bên trong và bên ngoài, mang lại cảm giác thông thoáng và rộng rãi. Những mẫu nhà cấp 4 nông thôn này được thiết kế nhẹ nhàng, không quá phức tạp về chi tiết nhưng vẫn thu hút mạnh mẽ bởi vẻ đẹp thanh thoát và gần gũi.

Ở khu vực nông thôn, nhà cấp 4 thường có chi phí xây dựng thấp hơn đáng kể so với các loại nhà khác như biệt thự hay nhà vườn. Nhờ vào cấu trúc đơn giản và thiết kế không quá phức tạp, những mẫu nhà cấp 4 nông thôn hiện đại ngày càng được nhiều gia chủ lựa chọn.

mẫu nhà cấp 4 hiện đại Mẫu nhà cấp 4 nông thôn hiện đại ngày càng được nhiều gia chủ lựa chọn vì tính thẩm mỹ, công năng mà đáp ứng mức chi phí hợp lí

3. Mẫu nhà cấp 4 chữ U hiện đại đẹp

Mẫu nhà cấp 4 chữ U hiện đại đem lại sự thuận tiện và linh hoạt giữa các không gian chức năng. Khác biệt với những mẫu nhà vuông, nhà ống hay nhà chữ L, nhà cấp 4 chữ U có không gian không bị hẹp và sâu, nhờ đó tạo được những lối đi trong nhà thuận tiện.

Mang trong mình phong cách kiến trúc hiện đại, mẫu nhà cấp 4 chữ U còn tỏa sáng với vẻ đẹp tươi mới và gần gũi. Mặt tiền được kết hợp từ các gam màu trung tính như màu trắng trang nhã cho tường chính, màu tối của mái thái, và màu đen của khung cửa kính. Khu vực trung tâm của nhà được bổ sung thêm mảng cây xanh phía trước, không chỉ tạo điểm nhấn phong thủy mà còn giúp làm mát và làm đẹp không gian nội thất.

nhà cấp 4 hiện đại Mẫu nhà cấp 4 chữ U hiện đại đẹp

4. Mẫu nhà cấp 4 2 phòng ngủ hiện đại

Các mẫu nhà cấp 4 hiện đại 2 phòng ngủ mang lại sự đa dạng trong thiết kế với mức giá thấp, thu hút sự quan tâm của nhiều chủ đầu tư, đặc biệt là các cặp vợ chồng trẻ. Các công trình nhà cấp 4 2 phòng ngủ thường tập trung vào việc khai thác và tận dụng hiệu quả không gian sử dụng, với trang trí nhẹ nhàng và không quá phức tạp, đồng thời tạo ra mối liên kết với không gian xanh. Bên cạnh đó, mẫu nhà này rất phù hợp với gia đình có từ 2 đến 3 thành viên.

Thiết kế và bố trí công năng của nhà cấp 4 2 phòng ngủ thường khá đơn giản, bao gồm 1 phòng khách, 2 phòng ngủ, 1 phòng bếp và phòng vệ sinh chung. Ngoài ra, chủ đầu tư có thể bổ sung thêm một số không gian phụ như phòng thờ, phòng giặt, tùy thuộc vào nhu cầu sử dụng của gia đình.

mẫu nhà cấp 4 hiện đại Bản vẽ nhà cấp 4 hiện đại có 2 phòng ngủ
mẫu nhà cấp 4 hiện đại Mẫu nhà cấp 4 2 phòng ngủ hiện đại phù hợp cho các cặp vợ chồng trẻ
mẫu nhà cấp 4 hiện đại Phòng ngủ master nhà cấp 4 2 phòng ngủ hiện đại
nhà cấp 4 hiện đại 2 phòng ngủ Phòng ngủ con gái nhà cấp 4 hiện đại

5. Mẫu nhà cấp 4 hiện đại chữ L

Mẫu nhà cấp 4 hiện đại hình chữ L đang trở thành một xu hướng phổ biến trong xây dựng hiện nay, nhờ vào ngoại thất trang nhã và hiện đại cùng với nội thất tiện nghi, tạo ra không gian sống tiện nghi. Những ngôi nhà chữ L hiện đại phù hợp với những chủ đầu tư yêu thích phong cách hiện đại, cá tính và mong muốn gần gũi với thiên nhiên.

Bên cạnh đo, các góc khuất của hình chữ L được tận dụng một cách sáng tạo, có thể làm khu vực vui chơi, trồng cây cảnh và sử dụng làm bãi đậu xe, vừa đảm bảo tính chức năng cần thiết cùng với việc tạo ra một không gian xanh cho ngôi nhà.

nhà cấp 4 chữ l hiện đại Mẫu nhà cấp 4 hiện đại hình chữ L

6. Mẫu nhà cấp 4 hiện đại có gác lửng

Thiết kế nhà cấp 4 hiện đại có gác lửng là một giải pháp tuyệt vời giúp gia đình tận dụng được không gian sống của ngôi nhà. Gác lửng được sử dụng để đặt phòng thờ và một phòng ngủ, mang lại sự tiện lợi và linh hoạt cho gia đình. Không gian tầng trệt của ngôi nhà có thể kết hợp giữa phòng khách và phòng bếp, tạo ra không gian rộng rãi và thoải mái. 

Ngoài ra, tông màu trắng nhẹ nhàng kết hợp cùng màu gỗ tạo nên không gian ấm áp và sang trọng. Mẫu nhà cấp 4 này còn có một góc không gian xanh, giúp gia đình thư giãn và gần gũi hơn với thiên nhiên. Thiết kế hiện đại của ngôi nhà này phù hợp và tiện ích cho gia đình yêu thích sự xanh thoáng và gắn kết với thiên nhiên.

mẫu nhà cấp 4 hiện đại có gác lửng Mẫu nhà cấp 4 hiện đại có gác lửng giúp tận dụng không gian sống một cách tối ưu

7. Mẫu nhà cấp 4 hiện đại 5×20

Mẫu nhà cấp 4 phong cách hiện đại kích thước 5×20 thường nhấn mạnh vào kiến trúc nhẹ nhàng và sự đơn giản của hình khối. Thiết kế chủ yếu tập trung vào việc bố trí các không gian sử dụng một cách khoa học và tối ưu, cùng với sự thông thoáng của ngôi nhà. Mục tiêu là tạo ra một môi trường thư giãn và thoải mái nhất cho tất cả các thành viên trong gia đình. Bên cạnh đó, bản vẽ mẫu nhà cấp 4 hiện đại không chỉ đảm bảo công năng sử dụng mà còn chú trọng đến yếu tố thẩm mỹ, mang lại cho gia đình những lựa chọn tối ưu nhất về không gian sống thân thiện với cảnh quan thiên nhiên.

mẫu nhà cấp 4 hiện đại Mẫu nhà cấp 4 phong cách hiện đại kích thước 5×20

8. Tham khảo chi phí xây dựng nhà cấp 4 hiện đại

Dưới đây là chi phí xây dựng thiết kế nhà cấp 4 hiện đại của SBS HOUSE:

  • Chi phí thiết kế nội thất: 180.000đ/m2
  • Chi phí thiết kế kiến trúc: 180.000đ/m2
  • Chi phí thiết kế trọn gói: 250.000đ/m2
  • Chi phí thi công hoàn thiện: 4.000.000đ/m2
  • Chi phí thi công nội thất: 3.000.000đ/m2
  • Chi phí thi công phần thô: 4.100.000đ/m2

Mức giá trên chỉ mang tính tham khảo, chi phí xây dựng có thể thay đổi tùy thuộc vào nhiều yếu tố như vị trí, diện tích đất, vật liệu sử dụng và các yêu cầu cụ thể của dự án. Để biết thông tin chi tiết và khai toán chi phí miễn phí, bạn có thể liên hệ trực tiếp với SBS HOUSE để được tư vấn nhanh nhất.

Trên đây là thông tin chi tiết về mẫu nhà cấp 4 hiện đại, là sự lựa chọn được nhiều người ưa chuộng trong thiết kế nhà ở. Do nguồn lực không đủ nên SBS HOUSE hiện tại chỉ nhận công trình có diện tích sử dụng từ 150m2 trở lên. SBS HOUSE là đơn vị chuyên thiết kế và thi công trọn gói các loại hình nhà ở và tòa nhà văn phòng, bao gồm nhà phố, biệt thự, căn hộ chung cư, tại miền Trung (bao gồm Đà Nẵng, Huế, Quảng Bình, Quảng Trị, Hà Tĩnh, Nghệ An, Quảng Nam, Quảng Ngãi) và miền Nam (bao gồm TPHCM, Bình Dương, Đồng Nai).

Đối với các tỉnh thành mà SBS HOUSE chưa có dịch vụ thi công, chúng tôi cung cấp dịch vụ thiết kế kiến trúc và nội thất, cũng như hỗ trợ thi công từ xa để đảm bảo công trình hoàn thiện và phản ánh chính xác nhất so với bản vẽ. Nếu bạn đang cần tư vấn về giải pháp thiết kế và thi công cho nhà phố, biệt thự, căn hộ chung cư, hoặc tòa nhà văn phòng, hãy liên hệ ngay với SBS HOUSE để được đội ngũ kiến trúc sư của chúng tôi hỗ trợ nhanh chóng!





Nguồn: SBSHouse

Tin cùng loại