Vizuart Design Kft. Ngôi nhà gia đình Virag_on Build Most

by admin



Bối cảnh dự án

Phòng bếp

Phòng bếp

Phòng bếp

Phòng bếp

Cổng vào

phòng khách

phòng khách

Phòng tầng trệt

Phòng tầng trệt

Tủ quần áo

Tủ quần áo

Phòng tầng 1

Phòng tầng 1

Phòng ngủ chính

Phòng tắm

Phòng tắm










Sơ đồ mặt bằng

Tầng trệt

Tầng 1


Biệt thự – Phòng ngủ (Phòng Master)

Trong phòng ngủ chính, tông màu be nhẹ nhàng làm nổi bật khung cảnh, với chiếc giường cỡ lớn, cực kỳ thoải mái làm tâm điểm.


Biệt thự – Phòng vẽ, Phòng khách

Phòng khách được nâng lên bằng một cầu thang treo nổi bật trông như đang lơ lửng, truyền vào không gian sự nhẹ nhàng thanh tao và sự sang trọng trong kiến ​​trúc.

Thiết kế lò sưởi hiện đại kết hợp với tấm ốp tường bằng gỗ óc chó tạo nên bầu không khí ấm áp và lôi cuốn.

Bảng màu be hạn chế tạo nên sự tương phản nổi bật với chiếc ghế sofa nhung màu xanh lá cây, ngay lập tức thu hút sự chú ý khi bước vào không gian.

Ẩn mình trong góc, bàn trang điểm và bàn trang điểm duyên dáng sẽ tăng thêm vẻ sang trọng mà bất kỳ người phụ nữ nào cũng phải ghen tị.


Biệt thự – Phòng ngủ

Trong phòng khách, chúng tôi sử dụng vật liệu nhẹ để mở rộng cảm giác về không gian một cách trực quan.

Một góc đọc sách quyến rũ đã được tích hợp một cách chu đáo, mang đến một không gian thanh bình cho những giây phút tĩnh tâm.

Trong phòng khách, chúng tôi sử dụng vật liệu nhẹ để mở rộng cảm giác về không gian một cách trực quan.


Biệt thự – Bếp

Khi thiết kế nhà bếp, điều quan trọng là tạo ra bầu không khí tươi sáng và tự nhiên, đó là lý do tại sao chúng tôi chọn tủ màu trắng kết hợp với tấm ốp tường bằng gốm màu xanh lá cây và thêm một chút gỗ óc chó để mang lại chút gợi ý cho khu vườn.

Khi thiết kế nhà bếp, điều quan trọng là tạo ra bầu không khí tươi sáng và tự nhiên, đó là lý do tại sao chúng tôi chọn tủ màu trắng kết hợp với tấm ốp tường bằng gốm màu xanh lá cây và thêm một chút gỗ óc chó để mang lại chút gợi ý cho khu vườn.

Khi thiết kế nhà bếp, điều quan trọng là tạo ra bầu không khí tươi sáng và tự nhiên, đó là lý do tại sao chúng tôi chọn tủ màu trắng kết hợp với tấm ốp tường bằng gốm màu xanh lá cây và thêm một chút gỗ óc chó để mang lại chút gợi ý cho khu vườn.


Biệt thự – Phòng ngủ (Kid)

Phòng trẻ em cân bằng giữa học tập và giải trí, với đồ nội thất đơn giản, thoải mái được tăng cường bởi các chi tiết lấy cảm hứng từ bóng đá đặt riêng mang lại cảm giác vui tươi và đặc biệt.

Phòng trẻ em cân bằng giữa học tập và giải trí, với đồ nội thất đơn giản, thoải mái được tăng cường bởi các chi tiết lấy cảm hứng từ bóng đá đặt riêng mang lại cảm giác vui tươi và đặc biệt.


Biệt thự – Phòng thay đồ

Để tối đa hóa chức năng, tiền sảnh ở tầng trên được thiết kế lại như một tủ quần áo kiểu dáng đẹp, tích hợp liền mạch kho lưu trữ vào không gian.


Biệt thự – Sân thượng

Trên sân thượng, chúng tôi đã tái sử dụng căn bếp gạch cũ trong nhà và bổ sung thêm một lò nướng bánh pizza ở góc.

Trên sân thượng, chúng tôi đã tái sử dụng căn bếp gạch cũ trong nhà và bổ sung thêm một lò nướng bánh pizza ở góc.

Trên sân thượng, chúng tôi đã tái sử dụng căn bếp gạch cũ trong nhà và bổ sung thêm một lò nướng bánh pizza ở góc.


Biệt thự – Phòng tắm

Phòng tắm chính sử dụng tông màu đất trầm, trong đó các bề mặt màu xám hai tông màu trải dài liền mạch trên sàn và tường, được tô điểm thêm bằng tủ gỗ óc chó ấm áp và đồ đạc màu đen tinh tế giúp nâng cao cảm giác sang trọng và tinh tế.

Phòng tắm chính sử dụng tông màu đất trầm, trong đó các bề mặt màu xám hai tông màu trải dài liền mạch trên sàn và tường, được tô điểm thêm bằng tủ gỗ óc chó ấm áp và đồ đạc màu đen tinh tế giúp nâng cao cảm giác sang trọng và tinh tế.

Phòng tắm chính sử dụng tông màu đất trầm, trong đó các bề mặt màu xám hai tông màu trải dài liền mạch trên sàn và tường, được tô điểm thêm bằng tủ gỗ óc chó ấm áp và đồ đạc màu đen tinh tế giúp nâng cao cảm giác sang trọng và tinh tế.

Phòng tắm chính sử dụng tông màu đất trầm, trong đó các bề mặt màu xám hai tông màu trải dài liền mạch trên sàn và tường, được tô điểm thêm bằng tủ gỗ óc chó ấm áp và đồ đạc màu đen tinh tế giúp nâng cao cảm giác sang trọng và tinh tế.


Biệt thự – Tiền sảnh, Hành lang

Tủ quần áo lớn được thiết kế cho khu vực lối vào giúp giấu áo khoác và giày một cách gọn gàng, đồng thời mang lại không gian thoải mái để chuẩn bị sẵn sàng.



Hình Ảnh Dự Án (Design Landed)

Cầu thang

Bàn bếp và bàn ăn

Phòng bếp

Cổng vào

phòng khách

phòng khách

Phòng tầng trệt

Phòng tầng 1

Phòng ngủ chính

Cầu thang

Cầu thang

Tủ quần áo

Tủ quần áo

phòng tắm tầng 1

sân thượng


Mô hình 3D trắng (Ảnh)

Phòng tắm chính

Phòng bếp

Phòng tắm chính

Phòng tắm chính

Phòng tắm chính

Phòng bếp


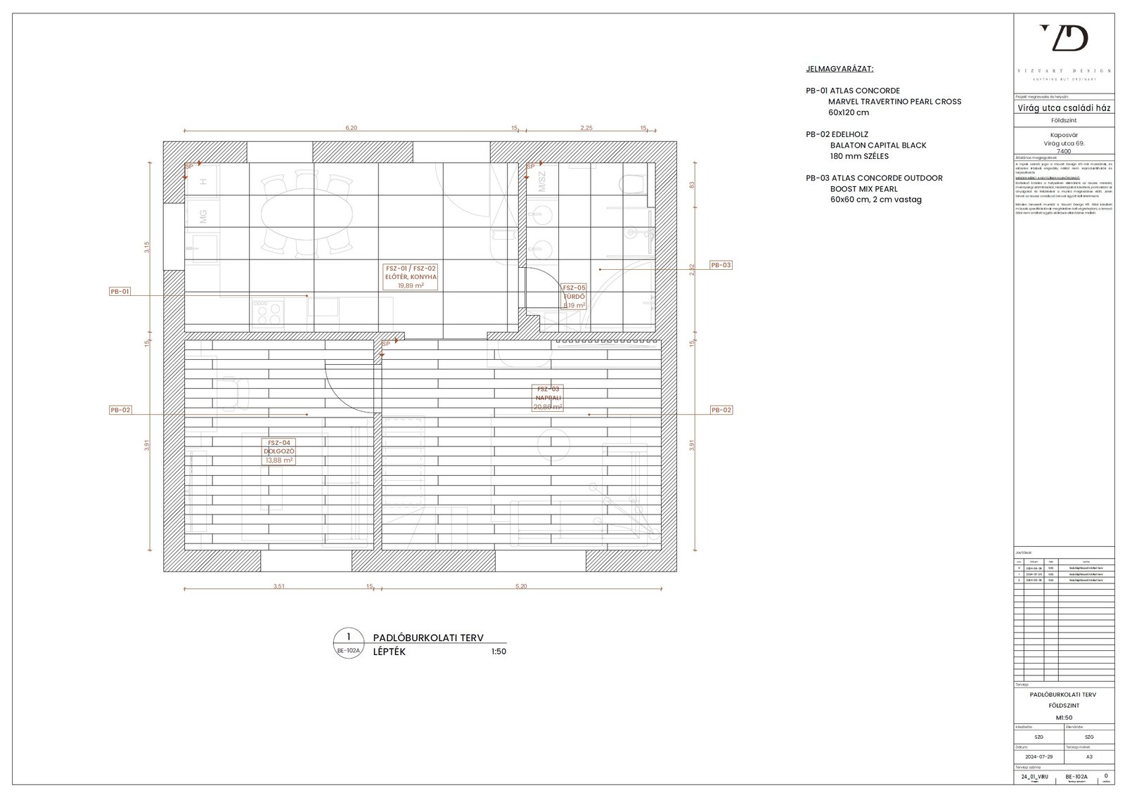
Bản vẽ thi công – Chi tiết sàn

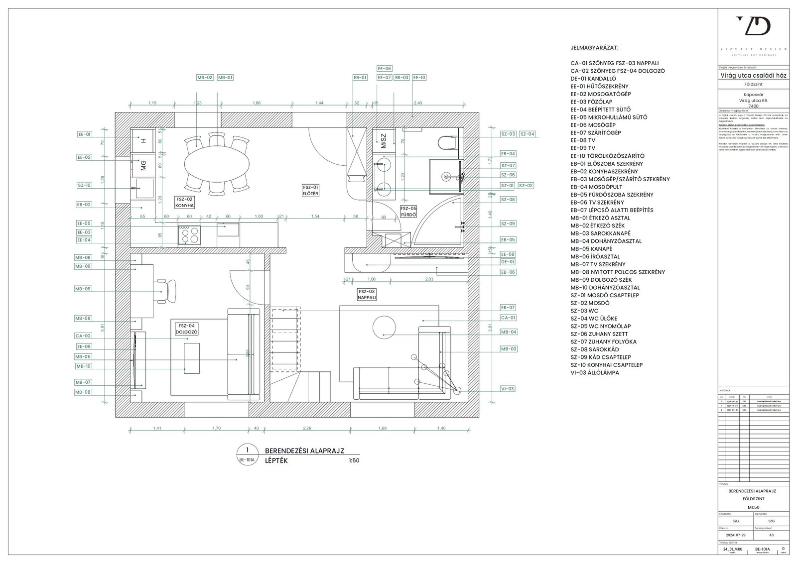
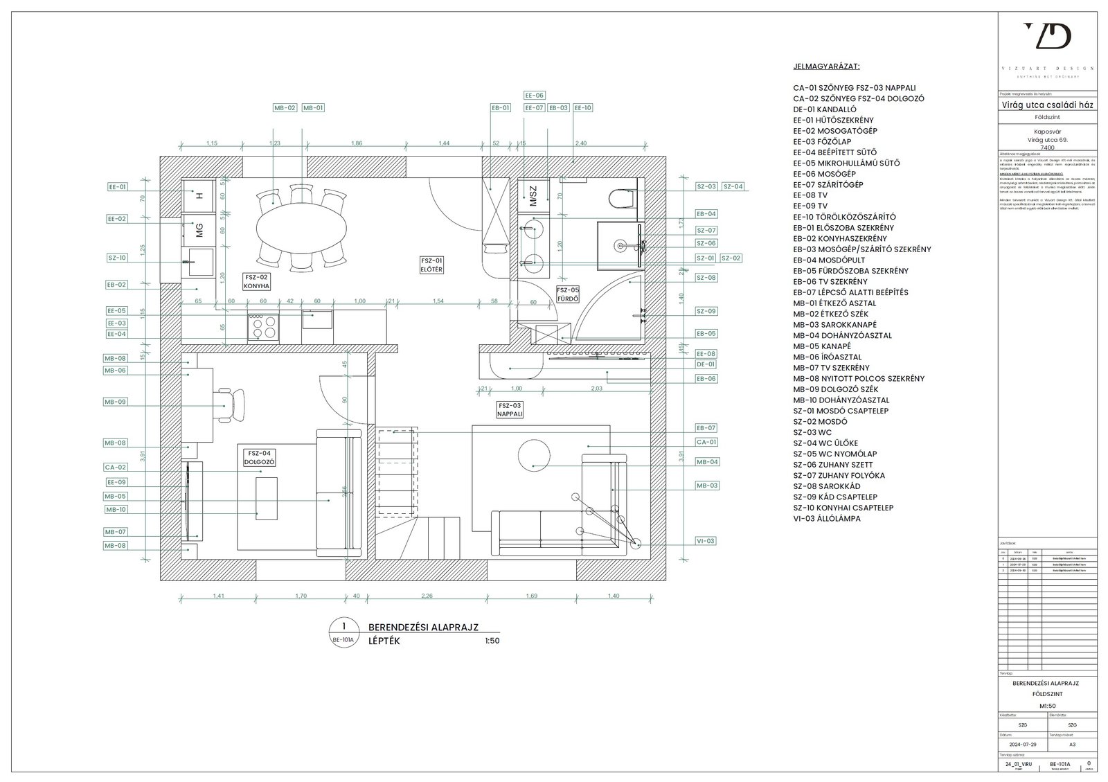
Sơ đồ nội thất

Sơ đồ mặt bằng

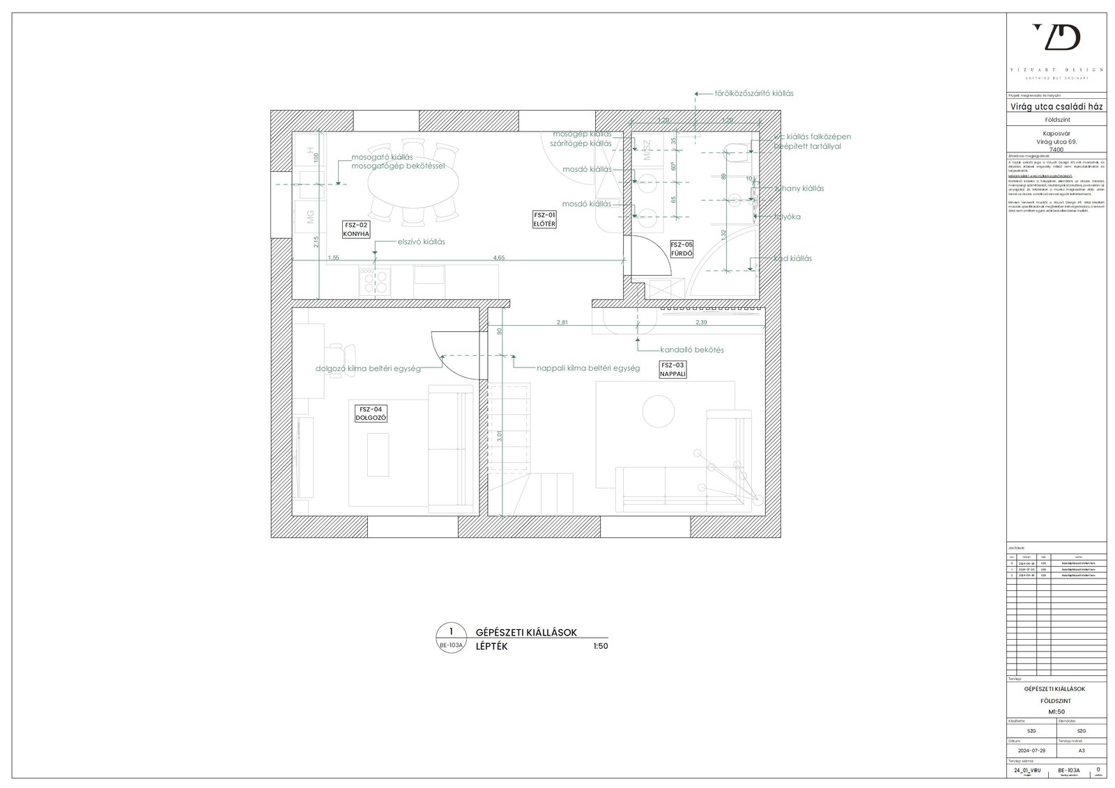
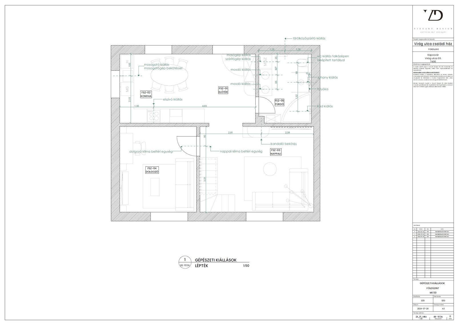
Sơ đồ vị trí cơ khí

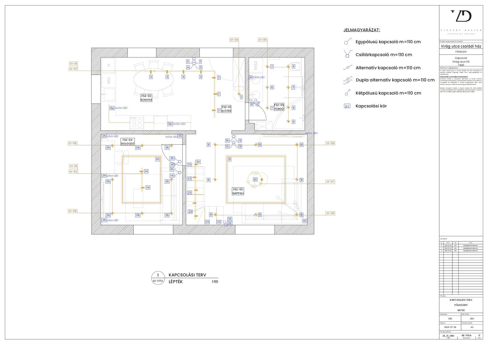
Sơ đồ điện

Kế hoạch điều khiển chuyển mạch

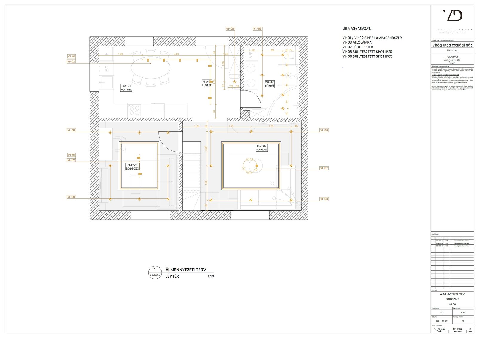
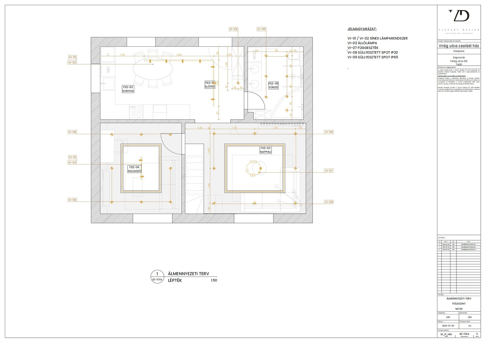
Sơ đồ trần và chiếu sáng

Độ cao nhà bếp

Độ cao phòng khách

Độ cao của phòng tắm chính

Nội thất nhà bếp

Nội thất tủ quần áo

cầu thang








Tin cùng loại