Thiết kế cải tạo và mở rộng nhà Richmond Edwardian, Hình ảnh ngôi nhà hiện đại ở phía tây nam London
22 tháng 11 năm 2025
Vị trí: Richmond, tây nam London, đông nam nước Anh, Vương quốc Anh
Thiết kế: Kiến trúc sư Footprint

Ảnh của Click Media Group
Cải tạo và mở rộng nhà Edwardian, Richmond, Luân Đôn, Vương quốc Anh
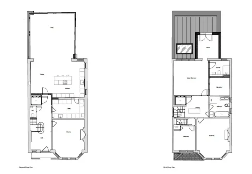
Việc cải tạo và mở rộng nhạy cảm này của một ngôi nhà thời Edward ở London được xác định bởi đặc điểm lịch sử của nó. Các đặc điểm lịch sử vẫn còn được trưng bày, bao gồm sàn lối vào lát gạch nguyên bản, cửa sổ kính màu dẫn đến cầu thang. Điều quan trọng là phải giữ lại những đặc điểm này, đồng thời hiện đại hóa lối đi và cách sử dụng ngôi nhà.

Ngôi nhà đã có những thay đổi từng phần trong những năm qua. Phần chiếu phía sau kiểu nhà kính đã được thay thế bằng một cấu trúc vững chắc, mái hiên ban đầu được khôi phục và bổ sung thêm phần mở rộng phía sau một tầng và chuyển đổi gác xép. Trong khi những công trình này mang lại những cải tiến ngày càng tăng, công việc kiến trúc được yêu cầu phải giải quyết những thách thức sâu sắc hơn của ngôi nhà: ngôn ngữ kiến trúc rời rạc bên ngoài, sự lưu thông bị gián đoạn và hạn chế ánh sáng tràn vào các phòng. hành lang và sự ngắt kết nối với khu vườn.

Thử thách của Footprint Architects là thoát khỏi những ràng buộc này để khai thác hoàn toàn tiềm năng của ngôi nhà. Dự án tăng cường ánh sáng ban ngày, bổ sung thêm khu vực tủ quần áo không cửa ngăn rộng rãi và thang máy dễ tiếp cận, đồng thời loại bỏ các vách ngăn không cần thiết để biến ngôi nhà ba tầng của gia đình thành một ngôi nhà sáng sủa, thông thoáng hỗ trợ cuộc sống gia đình hiện đại — trong khi vẫn nhạy cảm với nhịp điệu, sự riêng tư và di sản của đường phố Richmond.

Quá trình thiết kế bắt đầu bằng việc phân tích kỹ lưỡng kiến trúc địa phương, khám phá ánh sáng ban ngày, lưu thông đơn giản và điều tra các kết nối với không gian bên ngoài trong khi vẫn bảo tồn được ảnh hưởng lịch sử.
Giải pháp được đưa ra dưới dạng phần mở rộng phía sau được mạ kẽm và tổ chức lại tầng trệt nhằm xóa mờ ranh giới giữa bên trong và bên ngoài, đồng thời tôn trọng cẩn thận các đường nét của tòa nhà lân cận.

Việc sắp xếp các không gian sống dọc theo một trục đơn lẻ đã tạo ra một con đường tự nhiên hướng về không gian ngoài trời. Việc cấu hình lại đã khiến các phân vùng trở nên dư thừa và điều chỉnh lại cuộc sống gia đình xung quanh trung tâm hòa đồng mới. Kính lớn củng cố sự kết nối này với bên ngoài bằng cách tràn ngập không gian mới bằng ánh sáng ban ngày, mang lại tầm nhìn ra khu vườn với khả năng mở hoàn toàn trong những tháng hè.

Sự lựa chọn vật liệu đều có chủ ý như nhau. Kẽm được chọn vì độ bền, ít phải bảo trì và chất lượng âm thanh êm dịu, mang đến sự đối lập hiện đại với các loại gạch hiện có mà không bị bắt chước. Bảng màu khiêm tốn đảm bảo phần mở rộng nằm lặng lẽ trong nét đặc trưng thời Edward của đường phố.
Kết quả là một ngôi nhà mang lại cảm giác vừa thiết thực vừa nâng cao tinh thần: sáng sủa hơn, kết nối tốt hơn và có khả năng thích ứng cao với cuộc sống gia đình. Kiến trúc sư Footprint đã hình dung lại một sân thượng thời Edward về lâu dài, tạo ra một phần mở rộng hiện đại bắt nguồn từ vị trí và mục đích của nó.

Cải tạo và mở rộng nhà Richmond Edwardian, Luân Đôn – Thông tin Bất động sản
Tên dự án: Cải tạo & mở rộng nhà Edwardian
Hãng kiến trúc: Footprint Architects
Trang web: https://www.footprintarchitects.co.uk
Email liên hệ: (email protected)
Địa điểm công ty: Bournemouth, Dorset, Vương quốc Anh
Năm hoàn thành: 2024
Tổng diện tích nội bộ: 270 m2
Vị trí dự án: Richmond, London, Vương quốc Anh
Kiến trúc sư trưởng: Mike Ford
Email kiến trúc sư trưởng: (email protected)

Phương tiện truyền thông:
Nguồn ảnh: Nhấp vào Nhóm truyền thông
Trang web của nhiếp ảnh gia: www.clickmediagroup.co.uk
Email của nhiếp ảnh gia: (email protected)
Tín dụng bổ sung:
Nhóm thiết kế: Footprint Architects
Khách hàng: Cá nhân
Kỹ thuật:
– Kết cấu: Thorpe Engineering Consultants Ltd
Nhà tư vấn:
– Nhà khảo sát kiểm soát tòa nhà: Nhà khảo sát kiểm soát tòa nhà cấp cao của Hội đồng Richmond và Wandsworth

Kiến trúc sư dấu chân
Footprint Architects là một công ty được RIBA cấp phép có trụ sở tại Bournemouth, Dorset. Họ tận tâm tạo ra các giải pháp thiết kế chất lượng cao, tinh tế và thanh lịch. Chuyên về thiết kế hiện đại, các dự án của chúng tôi bao gồm từ mở rộng khu dân cư và xây dựng trường học mới.
Để biết thêm thông tin, hãy truy cập: www.footprintarchitects.co.uk
Cải tạo và mở rộng nhà Richmond Edwardian ở phía tây nam London Thông tin / hình ảnh nhận được từ Footprint Architects, Vương quốc Anh
Địa chỉ: Richmond, Luân Đôn, Anh, Vương quốc Anh.
Luân Đôn Nhà
Bất động sản Richmond
Tòa nhà Richmond
Nhà White Lodge, Đường Upper Richmond SW15
Thiết kế: Studio Octopi Architects
Ảnh: Jack Hobhouse
Học viện tái sinh Kingston, Đường Richmond
Thiết kế: Astudio
hình ảnh từ studio kiến trúc
Ngôi nhà có bậc thang ở Công viên Richmond
Thiết kế: kiến trúc ba mặt / h2architecture
ảnh © Nick Kane
++
Thiết kế nhà Barnes
Thiết kế tài sản Barnes
Ngôi nhà gạch Barnes ở Richmond
Thiết kế: YARD Architects
Hình ảnh © Agnese Sanvito
Nhà hướng núi
Thiết kế: CÓ THỂ
ảnh: Jim Stephenson
Phần mở rộng nhà Barnes, Quận Richmond trên sông Thames
Thiết kế: Kiến trúc Matteo Cainer
++
Thiết kế bất động sản Luân Đôn
Thiết kế kiến trúc London đương đại
Liên kết Kiến trúc Luân Đôn – danh sách theo thời gian
Tin tức kiến trúc London
Chuyến tham quan đi bộ khám phá kiến trúc Luân Đôn – chuyến đi dạo quanh thành phố thủ đô Vương quốc Anh của kiến trúc sư điện tử
Văn phòng Kiến trúc Luân Đôn
Bình luận/hình ảnh cho Cải tạo và mở rộng nhà Richmond Edwardian thiết kế bất động sản của Footprint Architects ở phía tây nam London, Anh, trang chào mừng Vương quốc Anh